Privato Vende
€ 450.000
- Più di 5 locali
- 300 mq
Altro in Vendita da Privato a Pradamano
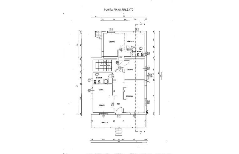
casa indipendente
Immobile indipendente di circa 300 mq circa, scoperto di circa 700 mq ,con due passi carrai. L'immobile è composto da due appartamenti: Piano terra di circa 150 mq , primo piano di circa 90 mq + terrazza di 40 mq , scantinato di circa 50 mq. Completamente ristrutturato con particolare attenzione al risparmio energetico .
Classe energetica assegnata: A+++ . Servito da impianto fotovoltaico e impianto solare termico.
Classe energetica assegnata: A+++ . Servito da impianto fotovoltaico e impianto solare termico.
DATI PRINCIPALI
- Riferimento
- 191714
- Contratto
- Vendita
- Tipologia
- Altro
- Superficie
- 300 mq
- Locali
- Più di 5
COSTI
- Prezzo
- € 450.000,00
CONTATTA L'INSERZIONISTA
- Aggiornato al 20 apr 2026
MUTUO
Annunci immobiliari da Privati a Pradamano
Comune di Pradamano
Provincia di Udine
Annunci simili
€ 100.000
- 5+ locali
- 102 mq
