Privato Vende
€ 90.000
- Più di 5 locali
- 110 mq
Appartamento in Vendita da Privato a Barcellona Pozzo di Gotto
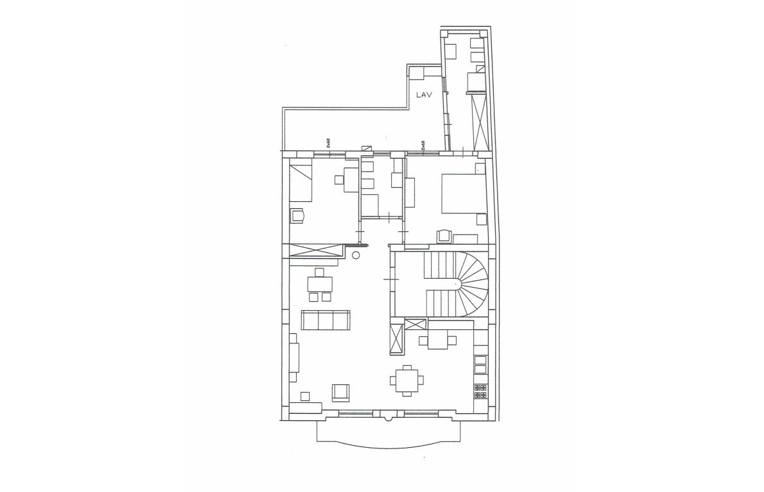
appartamenti al rustico
Completi di tamponature, tramezzi e linee impianto fognante,enel e idrica.L'appartamento può essere personalizzato nelle finiture e distribuzione ,risulta compodo e ben illuminato , prevede due camere da letto,due bagni, lavanderia, spogliatoio, ampio soggiorno, cucina abitabile , due ampi balconi e armadi a muro. L'immobile di nuova costruzione ha finiture ricercate ed è collocato in zona storica con verde e parcheggi adiacenti
DATI PRINCIPALI
- Riferimento
- 72540
- Contratto
- Vendita
- Tipologia
- Appartamento
- Superficie
- 110 mq
- Locali
- Più di 5
COSTI
- Prezzo
- € 90.000,00
EFFICIENZA ENERGETICA
- Stato
- Nuovo/In costruzione
- Anno costruzione
- 2016
- Classe energetica
- Immobile non soggetto all'obbligo di certificazione energetica
CONTATTA L'INSERZIONISTA
- Aggiornato al 01 dic 2025
MUTUO
Annunci immobiliari da Privati a Barcellona Pozzo di Gotto
Comune di Barcellona Pozzo di Gotto
- Appartamenti in vendita senza intermediari Barcellona Pozzo di Gotto
- Case in vendita da privati Barcellona Pozzo di Gotto
Provincia di Messina
Annunci simili
€ 90.000
- 5+ locali
- 130 mq
Trattativa Riservata
- 5+ locali
- 200 mq
€ 65.000
- 5+ locali
- 120 mq
