Privato Vende
Trattativa Riservata
- 3 locali
- 100 mq
- 1 bagno
Appartamento in Vendita da Privato a Rho
Appartamento abitabile in Vendita
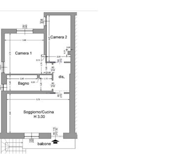
Posizione centrale, tranquilla, vicinanze mezzi pubblici (sia autobus che ferrovia), a pochi passi da supermercato; comodo e in buono stato, appartamento in condominio molto curato, composto da ingresso con ampia nicchia guardaroba, soggiorno molto spazioso, cucina abitabile, grande camera da letto matrimoniale con parquet, camera singola, bagno, due balconi, cantina.
NO AGENZIE.
NO AGENZIE.
DATI PRINCIPALI
- Riferimento
- 2450
- Contratto
- Vendita
- Tipologia
- Appartamento
- Superficie
- 100 mq
- Locali
- 3
- Camere da letto
- 2
- Cucina
- Abitabile
- Bagni
- 1
- Totale piani
- 6
CARATTERISTICHE
Balcone
Terrazzo
Ascensore
Cantina
COSTI
- Prezzo
- Trattativa Riservata
EFFICIENZA ENERGETICA
- Stato
- Abitabile
- Anno costruzione
- 1962
- Riscaldamento
- Centralizzato
- Classe energetica
- E
A+
A
B
C
D
Classe energetica E
E
F
G
CONTATTA L'INSERZIONISTA
- Aggiornato al 11 feb 2026
Annunci immobiliari da Privati a Rho
Comune di Rho
- Appartamenti in vendita da proprietario Rho
- Vendita case senza agenzia Rho
- Trilocali in vendita senza provvigioni Rho
Provincia di Milano
Annunci simili
€ 169.000
- 3 locali
- 90 mq
