Privato Vende
€ 260.000
- 3 locali
- 80 mq
- 2 bagni
Appartamento in Vendita da Privato a Trani
Appartamento + Box
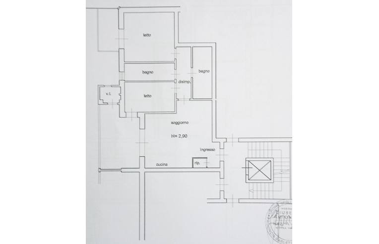
Zona don Sturzo a sud di Trani: appartamento 3P mq 80, veranda e balcone mq 21,70, Box auto mq 23, anno di costruzione 2021-2022, classe energetica A4, completamente arredato, composto da: zona Living con zona cottura a vista attrezzata con lavastoviglie e adiacente ad un ripostiglio-dispensa, Corridoio per accedere in: Camera letto matrimoniale, 1 Cameretta, 1 Bagno+ 1 secondo Bagno attrezzata di lavatrice, Veranda con annesso vano tecnico-ripostiglio accesso dalla zona Living, Balcone con accesso dalla camera Matrimoniale. Appartamento con porta d'ingresso blindata, allarme tecno-domotica e cassetta di sicurezza, serramenti esterni in legno con vetro camera a norma tutti con anta ribalta, porte interne tutte a scomparsa, impianto termico a pavimento alimentazione gas metano con predisposizione eventuale cambio alimentazione elettrico, integrazione acqua calda anche da pannelli solari, integrazione ad 1 wc con acque meteoriche, impianto di climatizzazione con sistema Split, pavimentazione in gres porcellanato, tenda solare alla veranda ecc. ecc. (no Perditempo)
Entrata nella piena proprietà (Rogito) Settembre 2027
LEGGI TUTTO...
Entrata nella piena proprietà (Rogito) Settembre 2027
DATI PRINCIPALI
- Riferimento
- 413375
- Contratto
- Vendita
- Tipologia
- Appartamento
- Superficie
- 80 mq
- Locali
- 3
- Camere da letto
- 2
- Cucina
- Angolo cottura
- Bagni
- 2
- Piano
- 3 ° con ascensore
- Totale piani
- 6
- Box/Posto auto
- Posto auto coperto
CARATTERISTICHE
Balcone
Terrazzo
Ascensore
Arredato
Cantina
COSTI
- Prezzo
- € 260.000,00
EFFICIENZA ENERGETICA
- Stato
- Abitabile
- Anno costruzione
- 2021
- Riscaldamento
- Autonomo
- Climatizzazione
- Si
- Classe energetica
- A4
- IPE
- 14,45 kWh/m²a
14,45 kWh/m²a | Classe energetica A4
A4
A3
A2
A1
B
C
D
E
F
G
MAPPA
CONTATTA L'INSERZIONISTA
- Annuncio del 08 mar 2026
MUTUO
Annunci immobiliari da Privati a Trani
Comune di Trani
- Appartamenti in vendita senza agenzia Trani
- Case in vendita da privati Trani
- Trilocali in vendita da proprietario Trani
Provincia di Barletta-Andria-Trani
Annunci simili
Trattativa Riservata
- 4 locali
- 130 mq
€ 299.000
- 4 locali
- 150 mq
€ 35.000
- 5 locali
- 160 mq
€ 140.000
- 3 locali
- 67 mq
