Privato Vende
€ 255.000
- 4 locali
- 97 mq
Appartamento in Vendita da Privato a Termoli
Appartamento con Autorimessa
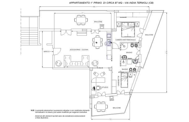
Appartamento sito al 1° piano di una splendida palazzina ancora in costruzione, composta di soli 12 unità immobiliari, confinante con l'Ufficio Postale e il centro commerciale OASI, occupa una posizione strategica su tre lati, Nord-Est - Sud-Est - Sud - Ovest, composto da soggiorno: "soggiorno cucina con balcone, camera matrimoniale con porta a battente e balcone, bagno padronale con con porta scorrevole e balcone, bagno di servizio con porta scorrevole e finestra, cameretta con porta scorrevole e balcone, studio con porta scorrevole e balcone". Gli impianti tecnologici, di riscaldamento, la predisposizione dell'aria condizionata e l'impianto elettrico e predisposizione di videosorveglianza e allarme sono di ultima generazione, i rivestimenti sono di pregio. Si completa con un'ampia autorimessa che affaccia su via India situata su un livello leggermente superiore rispetto il piano stradale, tale posizione ne facilita l'ingresso alla stessa autorimessa.
LEGGI TUTTO...
DATI PRINCIPALI
- Riferimento
- 382754
- Contratto
- Vendita
- Tipologia
- Appartamento
- Superficie
- 97 mq
- Locali
- 4
COSTI
- Prezzo
- € 255.000,00
MAPPA
CONTATTA L'INSERZIONISTA
- Aggiornato al 04 feb 2026
MUTUO
Annunci immobiliari da Privati a Termoli
Comune di Termoli
- Vendesi appartamenti senza provvigioni Termoli
- Vendita case senza intermediari Termoli
- Quadrilocali in vendita no agenzia Termoli
Provincia di Campobasso
Annunci simili
Trattativa Riservata
- 5+ locali
- 227 mq
Trattativa Riservata
- 5+ locali
- 130 mq
€ 140.000
- 4 locali
- 120 mq
€ 80.000
- 4 locali
- 83 mq
€ 120.000
- 5+ locali
- 120 mq
Trattativa Riservata
- 5 locali
- 100 mq
