Privato Vende
€ 260.000
- 4 locali
- 90 mq
Appartamento in Vendita da Privato a San Gregorio di Catania
Appartamento con giardino e garage viale Europa
Privato vende appartamento di recente costruzione (2011) mai abitato, zona Viale Europa, San Gregorio di Catania, in contesto residenziale.
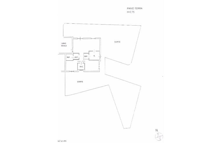
Sito al piano rialzato di un villino ascensorato, l'appartamento è suddiviso in una zona giorno: living+pranzo pari a 34 mq, cucina abitabile e lavanderia-dispensa e una zona notte: due camere da letto, due bagni e guardaroba. Esposto su tre lati con giardino di 300mq e balcone, l'immobile è dotato di riscaldamento autonomo a metano, predisposizione incasso climatizzazione, impianto lan e satellitare.
Finiture: infissi in legno, porte interne in wengè con maniglie cromate, gres porcellanato, mosaico in vetro, luci a parete, luci segnapasso e a controsoffitto.
Incluso nel prezzo garage 24mq con pozzetto e due cisterne d'acqua d'emergenza; esecutivi arredi interni (ebanisteria su misura) progetto sistemazione giardino. Il giardino è dotato di impianti di irrigazione e luce
Classe energetica A, categoria catastale A/2 classe7, con. 6vani. Garage: cat. c/6, classe 8 con. 24mq.
LEGGI TUTTO...
Sito al piano rialzato di un villino ascensorato, l'appartamento è suddiviso in una zona giorno: living+pranzo pari a 34 mq, cucina abitabile e lavanderia-dispensa e una zona notte: due camere da letto, due bagni e guardaroba. Esposto su tre lati con giardino di 300mq e balcone, l'immobile è dotato di riscaldamento autonomo a metano, predisposizione incasso climatizzazione, impianto lan e satellitare.
Finiture: infissi in legno, porte interne in wengè con maniglie cromate, gres porcellanato, mosaico in vetro, luci a parete, luci segnapasso e a controsoffitto.
Incluso nel prezzo garage 24mq con pozzetto e due cisterne d'acqua d'emergenza; esecutivi arredi interni (ebanisteria su misura) progetto sistemazione giardino. Il giardino è dotato di impianti di irrigazione e luce
Classe energetica A, categoria catastale A/2 classe7, con. 6vani. Garage: cat. c/6, classe 8 con. 24mq.
DATI PRINCIPALI
- Riferimento
- 107645
- Contratto
- Vendita
- Tipologia
- Appartamento
- Superficie
- 90 mq
- Locali
- 4
COSTI
- Prezzo
- € 260.000,00
EFFICIENZA ENERGETICA
- Classe energetica
- A
A+
Classe energetica A
A
B
C
D
E
F
G
CONTATTA L'INSERZIONISTA
- Aggiornato al 26 mar 2026
MUTUO
Annunci immobiliari da Privati a San Gregorio di Catania
Comune di San Gregorio di Catania
- Appartamenti in vendita senza intermediari San Gregorio di Catania
- Case in vendita senza provvigioni San Gregorio di Catania
- Vendita quadrilocali da privato San Gregorio di Catania
Provincia di Catania
Annunci simili
€ 165.000
- 5+ locali
- 169 mq
