Privato Vende
€ 156.000
- 5 locali
- 112 mq
Appartamento in Vendita da Privato a Mosciano Sant'Angelo
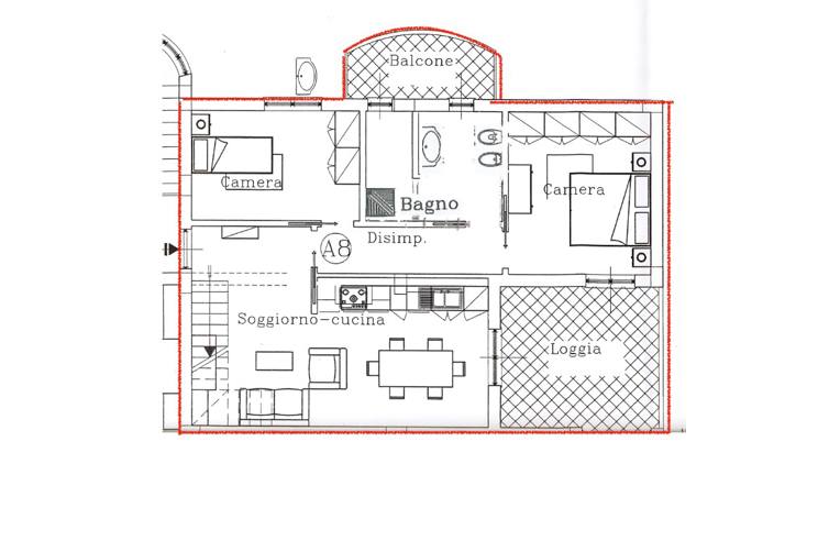
Appartamento Duplex
In un fabbricato di recente costruzione a pochi passi dal centro(postemt.100,banca mt.200,farmacia mt.100,scuole elementari ed asilo nido mt.100,supermercato mt.50) vendesi Duplex (mq.112)collegato con scala interna composto da : Ingresso ,soggiorno con angolo cottura,corridoio,due camere da letto,bagno e antibagno ,balcone e loggia con vista verso est al primo piano.Al secondo piano Corridoio,taverna cucina,bagno,camera da letto e due loggie.L'appartamento è provvisto di riscaldamento a pavimento,e aria condizionata in due camere da letto,inoltre ci sono due lavatoi esterni uno al primo piano e uno al secondo. box auto e cantina di oltre 40mq , balconi e loggie mq40
LEGGI TUTTO...
DATI PRINCIPALI
- Riferimento
- 312285
- Contratto
- Vendita
- Tipologia
- Appartamento
- Superficie
- 112 mq
- Locali
- 5
COSTI
- Prezzo
- € 156.000,00
EFFICIENZA ENERGETICA
- Classe energetica
- D
A+
A
B
C
Classe energetica D
D
E
F
G
MAPPA
CONTATTA L'INSERZIONISTA
- Aggiornato al 13 gen 2026
MUTUO
Annunci immobiliari da Privati a Mosciano Sant'Angelo
Comune di Mosciano Sant'Angelo
- Vendita appartamenti no agenzia Mosciano Sant'Angelo
- Case in vendita senza agenzia Mosciano Sant'Angelo
Provincia di Teramo
Annunci simili
Trattativa Riservata
- 5+ locali
- 120 mq
€ 135.000
- 5+ locali
- 150 mq
