Privato Vende
€ 200.000
- 5 locali
- 115 mq
Appartamento in Vendita da Privato a San Giovanni Valdarno
appartamento in bifamiliare
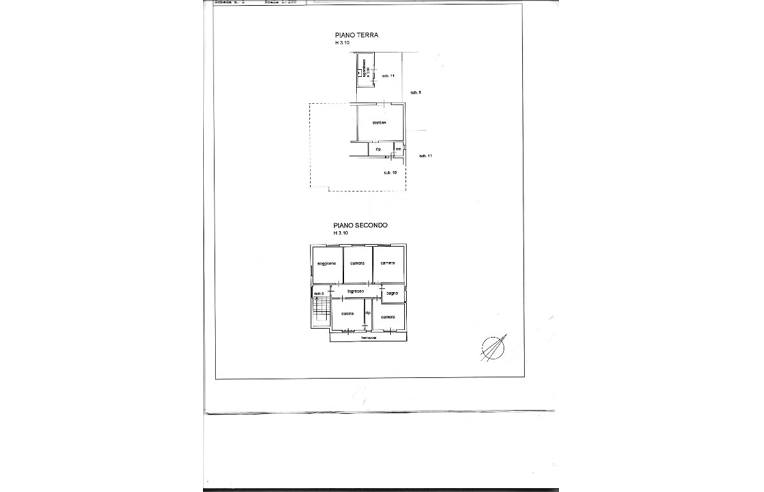
Vendiamo appartamento di 5 vani circa 115mq, al 2° piano di una bifamiliare, al piano terra si trovano, un grande fondo con ingresso e bagno finestrato, ed un garage per un totale di circa 70 mq, con altezza superiore a 3 m, quindi con possibilità di poter fare una cambio di uso in abitativo, in oltre un grande resede su 3 lati.
Classe energetica fase di realizzazione.
Classe energetica fase di realizzazione.
DATI PRINCIPALI
- Riferimento
- 409963
- Contratto
- Vendita
- Tipologia
- Appartamento
- Superficie
- 115 mq
- Locali
- 5
COSTI
- Prezzo
- € 200.000,00
MAPPA
CONTATTA L'INSERZIONISTA
- Annuncio del 27 dic 2025
MUTUO
Annunci immobiliari da Privati a San Giovanni Valdarno
Comune di San Giovanni Valdarno
- Vendesi appartamenti senza agenzia San Giovanni Valdarno
- Case in vendita da proprietario San Giovanni Valdarno
Provincia di Arezzo
Annunci simili
Trattativa Riservata
- 5+ locali
- 87 mq
€ 120.000
- 5+ locali
- 125 mq
