Privato Vende
€ 370.000
- Più di 5 locali
- 150 mq
- 2 bagni
Appartamento in Vendita da Privato a Roma
Appartamento in porzione di casale
Appartamento via Mario Vinciguerra, Roma
PORZIONE DI CASALE IN VENDITA ZONA TRIGORIA 360,000 euro
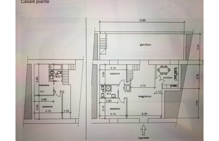
Trigoria, adiacente i campi sportivi dell' ''A.S. Roma", più precisamente in Via Mario Vinciguerra, proponiamo in vendita una porzione di casale di 150 mq disposto su due livelli, piano terra e piano soppalcato.
P.T.: ingresso, ampio soggiorno con camino ed accesso al giardino, cucina abitabile, due camere da letto, bagno con doccia e scala di accesso al piano superiore;
Piano soppalcato: studio con travi a vista in legno, una camera da letto matrimoniale e una cameretta con lucernari, bagno con vasca.
Completa la proprietà un giardino attrezzato di 50 mq circa un garage doppio di pertinenza e un posto auto.
No agenzie
LEGGI TUTTO...
PORZIONE DI CASALE IN VENDITA ZONA TRIGORIA 360,000 euro
Trigoria, adiacente i campi sportivi dell' ''A.S. Roma", più precisamente in Via Mario Vinciguerra, proponiamo in vendita una porzione di casale di 150 mq disposto su due livelli, piano terra e piano soppalcato.
P.T.: ingresso, ampio soggiorno con camino ed accesso al giardino, cucina abitabile, due camere da letto, bagno con doccia e scala di accesso al piano superiore;
Piano soppalcato: studio con travi a vista in legno, una camera da letto matrimoniale e una cameretta con lucernari, bagno con vasca.
Completa la proprietà un giardino attrezzato di 50 mq circa un garage doppio di pertinenza e un posto auto.
No agenzie
DATI PRINCIPALI
- Riferimento
- 256185
- Contratto
- Vendita
- Tipologia
- Appartamento
- Superficie
- 150 mq
- Locali
- Più di 5
- Camere da letto
- 4
- Cucina
- Abitabile
- Bagni
- 2
- Piano
- Ultimo
- Box/Posto auto
- Doppio
CARATTERISTICHE
Giardino privato
Semi-arredato
COSTI
- Prezzo
- € 370.000,00
EFFICIENZA ENERGETICA
- Stato
- Ristrutturato
- Riscaldamento
- Autonomo
- Climatizzazione
- Si
MAPPA
CONTATTA L'INSERZIONISTA
- Aggiornato al 09 lug 2025
MUTUO
Annunci immobiliari da Privati a Roma
Comune di Roma
- Appartamenti in vendita da privati Roma
- Case in vendita senza agenzia Roma
- Vendesi case da proprietario zona Trigoria, Roma
Provincia di Roma
Annunci simili
€ 1.850.000
- 5+ locali
- 126 mq
€ 400.000
- 5+ locali
- 100 mq
€ 245.000
- 5+ locali
- 120 mq
