Privato Vende
€ 128.000
- Più di 5 locali
- 233 mq
- 2 bagni
Appartamento in Vendita da Privato a Vercelli
Appartamento in Vercelli corso Libertà 30 al 2° piano 233 mq
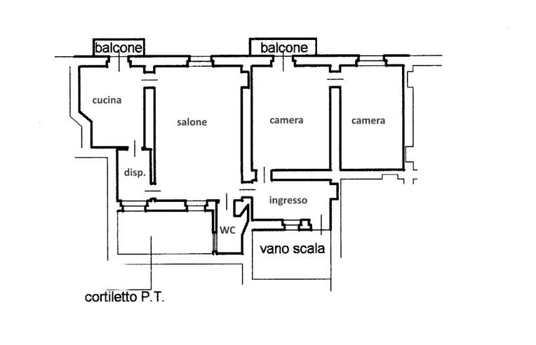
La nostra Associazione vende appartamenti di 233 mq al secondo piano complessivi ovvero due appartamenti adiacenti (uno da 140 mq e l’altro da 93 mq) ancora catastalmente distinti ma perfettamente collegabili su due lati in caseggiato storico del 1700 senza ascensore. L’appartamento così risultante è disposto su un unico piano nobile padronale, il secondo di tre, che occupa quasi interamente mantenendo due ingressi separati e il doppio affaccio sia sul punto più bello e soleggiato dell’inizio di passeggiata del corso Libertà con ben 3 balconi e 2 finestre, sia sul cortile interno con un’ampia balconata di servizio e due finestre. Le alte volte a cupola di 3,4 metri con cornicione offrono una cubatura degna di nota. I muri sani e asciutti sono di spessore importante che garantiscono fresco d’estate e ottimo mantenimento del calore in inverno con la necessaria sostituzione di tutti gli infissi. La composizione è data da: 1) ingresso principale dotato di una finestra a grata con affaccio sulle scale interne, 2) un piccolo bagno con ampia finestratura, 3) salone doppio con due finestre, una con affaccio sul corso e l’altra interna, 4) ampia cucina ricavabile dal precedente tinello con balcone sul corso, 5) piccolo locale dispensa (ex cucinino) con finestra, 6) ampia camera da letto con secondo balcone sul corso, 7) camera da letto con finestra sul corso, 8) ampia camera da letto con terzo balcone sul corso, 9) ampia sala con finestra sul cortile, 10) ampio locale con porta finestra sulla balconata interna, 11) piccolo bagno con finestra.
I locali richiedono ristrutturazione completa solo parzialmente iniziata e vengono quindi offerti a prezzo particolarmente favorevole per una posizione introvabile. Le parti comuni sono in ottimo stato. Unica occasione per una così ampia metratura nella zona.
Inclusi nell'offerta il posto auto in cortile comodo e spazioso per auto caravan o furgoni introvabile sul Corso Libertà e un'ampia cantina profonda alta 2,90 m. adatta anche per vini pregiati.
LEGGI TUTTO...
I locali richiedono ristrutturazione completa solo parzialmente iniziata e vengono quindi offerti a prezzo particolarmente favorevole per una posizione introvabile. Le parti comuni sono in ottimo stato. Unica occasione per una così ampia metratura nella zona.
Inclusi nell'offerta il posto auto in cortile comodo e spazioso per auto caravan o furgoni introvabile sul Corso Libertà e un'ampia cantina profonda alta 2,90 m. adatta anche per vini pregiati.
DATI PRINCIPALI
- Riferimento
- 346680
- Contratto
- Vendita
- Tipologia
- Appartamento
- Superficie
- 233 mq
- Locali
- Più di 5
- Camere da letto
- 3
- Cucina
- Abitabile
- Bagni
- 2
- Piano
- 2 °
- Totale piani
- 3
- Box/Posto auto
- Singolo
CARATTERISTICHE
Balcone
Terrazzo
Giardino
Ascensore
Arredato
Cantina
COSTI
- Prezzo
- € 128.000,00
EFFICIENZA ENERGETICA
- Stato
- Da ristrutturare
- Anno costruzione
- 1700
- Riscaldamento
- Autonomo
- Climatizzazione
- No
- Classe energetica
- G
- IPE
- 259,24 kWh/m²a
A+
A
B
C
D
E
F
259,24 kWh/m²a | Classe energetica G
G
MAPPA
CONTATTA L'INSERZIONISTA
- Aggiornato al 01 dic 2025
MUTUO
Annunci immobiliari da Privati a Vercelli
Comune di Vercelli
Provincia di Vercelli
Annunci simili
Trattativa Riservata
- 5+ locali
- 170 mq
