Privato Vende
€ 105.000
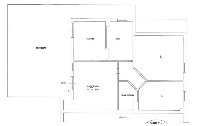
- 4 locali
- 80 mq
- 1 bagno
Appartamento in Vendita da Privato a Barile
Appartamento ingresso indipendente
Palazzo con tristrutturazione 110%. Ingresso indipendente con terrazzo, tende da sole incluse da installareper ultimazione lavori. Inferiate esterne finestre, boiler acqua calda con impianto solare indipendente.
DATI PRINCIPALI
- Riferimento
- 366820
- Contratto
- Vendita
- Tipologia
- Appartamento
- Superficie
- 80 mq
- Locali
- 4
- Camere da letto
- 2
- Cucina
- Abitabile
- Bagni
- 1
- Piano
- 1 °
- Box/Posto auto
- No
CARATTERISTICHE
Balcone
Terrazzo
Arredato
Cantina
COSTI
- Prezzo
- € 105.000,00
EFFICIENZA ENERGETICA
- Stato
- Ristrutturato
- Riscaldamento
- Autonomo
- Classe energetica
- A
- IPE
- 216,00 kWh/m²a
A+
216,00 kWh/m²a | Classe energetica A
A
B
C
D
E
F
G
MAPPA
CONTATTA L'INSERZIONISTA
- Aggiornato al 19 dic 2025
MUTUO
Annunci immobiliari da Privati a Barile
Comune di Barile
- Vendita appartamenti senza agenzia Barile
- Vendita case da privato Barile
- Quadrilocali in vendita senza intermediari Barile
Provincia di Potenza
Annunci simili
€ 118.000
- 5 locali
- 100 mq
€ 85.000
- 5+ locali
- 120 mq
€ 100.500
- 5+ locali
- 115 mq
Trattativa Riservata
- 5+ locali
- 148 mq
