Privato Vende
€ 90.000
- 5 locali
- 100 mq
Appartamento in Vendita da Privato a Caulonia
Appartamento libero
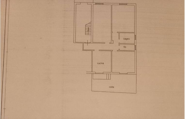
L'appartamento si trova in una zona residenziale con esercizi commerciali vicini a pochi passi dal mare composto da posto macchina eventuale box da costruire, sala, 2 camere da letto, bagno, cucina, piccola lavanderia. ottima posizione per evitare consumi di gas ...riscaldamento autonomo.
DATI PRINCIPALI
- Riferimento
- 384502
- Contratto
- Vendita
- Tipologia
- Appartamento
- Superficie
- 100 mq
- Locali
- 5
COSTI
- Prezzo
- € 90.000,00
CONTATTA L'INSERZIONISTA
- Aggiornato al 05 mar 2026
MUTUO
Annunci immobiliari da Privati a Caulonia
Comune di Caulonia
Provincia di Reggio Calabria
Annunci simili
Trattativa Riservata
- 5+ locali
- 108 mq
€ 160.000
- 5+ locali
- 90 mq
Trattativa Riservata
- 5+ locali
- 138 mq
€ 180.000
- 5+ locali
- 148 mq
€ 150.000
- 5 locali
- 120 mq
