Privato Vende
€ 180.000
- Più di 5 locali
- 130 mq
- 3 bagni
Appartamento in Vendita da Privato a Selvazzano Dentro
Appartamento luminoso Selvazzano Dentro
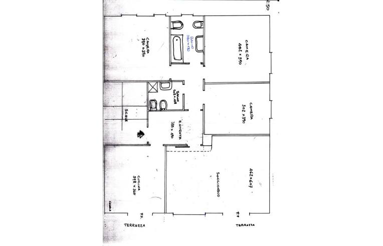
Luminoso e spazioso appartamento immerso nel verde al secondo e ultimo piano di una palazzina di quattro unità composto da 2 camere matrimoniale, camera singola, 2 bagni (di cui uno cieco), ampia cucina abitabile con uscita su un piccolo terrazzo, sala dalle grandi dimensioni che si affaccia su un secondo terrazzo ad angolo .
Al pian terreno c'è un locale taverna composto da: bagno/lavanderie, disimpegno, parete cucina/ salone.
Si fa presente che la taverna non è collegata all' appartamento da un passaggio diretto.
LEGGI TUTTO...
Al pian terreno c'è un locale taverna composto da: bagno/lavanderie, disimpegno, parete cucina/ salone.
Si fa presente che la taverna non è collegata all' appartamento da un passaggio diretto.
DATI PRINCIPALI
- Riferimento
- 83715
- Contratto
- Vendita
- Tipologia
- Appartamento
- Superficie
- 130 mq
- Locali
- Più di 5
- Camere da letto
- 3
- Cucina
- Abitabile
- Bagni
- 3
- Piano
- 2 °
- Totale piani
- 2
- Box/Posto auto
- Posto auto scoperto
CARATTERISTICHE
Balcone
Terrazzo
Giardino comune
Ascensore
Semi-arredato
Cantina
COSTI
- Prezzo
- € 180.000,00
EFFICIENZA ENERGETICA
- Stato
- Ristrutturato
- Anno costruzione
- 1981
- Riscaldamento
- Autonomo
- Climatizzazione
- Si
- Classe energetica
- G
A+
A
B
C
D
E
F
Classe energetica G
G
CONTATTA L'INSERZIONISTA
- Aggiornato al 02 apr 2026
MUTUO
Annunci immobiliari da Privati a Selvazzano Dentro
Comune di Selvazzano Dentro
- Appartamenti in vendita da proprietario Selvazzano Dentro
- Case in vendita no agenzia Selvazzano Dentro
Provincia di Padova
Annunci simili
€ 160.000
- 5+ locali
- 95 mq
€ 290.000
- 5+ locali
- 180 mq
