Privato Vende
€ 90.000
- 3 locali
- 52 mq
- 1 bagno
Appartamento in Vendita da Privato a Poggio Renatico
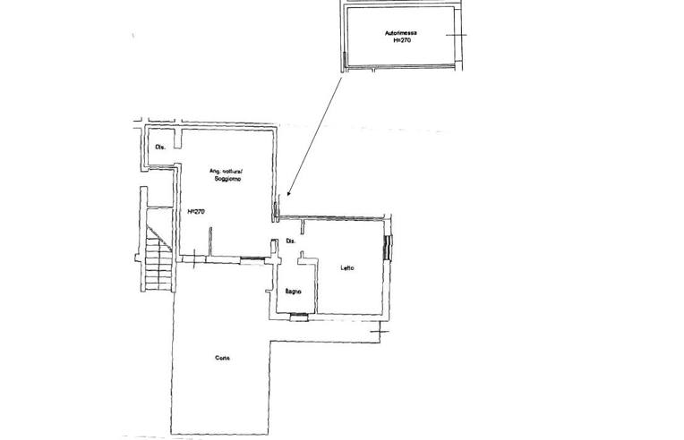
APPARTAMENTO PIANO TERRA- POGGIO RENATICO LOC. GALLO
Privato vende appartamento con giardino, ingresso indipendente, composto da soggiorno con angolo cottura, camera matrimoniale, bagno, ripostiglio e box auto adiacente con accesso anche dall’appartamento. Ottime finiture. Riscaldamento autonomo e predisposizione aria condizionata. Nuovo, mai abitato. Spese condominiali zero.
PREZZO 90.000,00 TRATTABILI
PREZZO 90.000,00 TRATTABILI
DATI PRINCIPALI
- Riferimento
- 5211
- Contratto
- Vendita
- Tipologia
- Appartamento
- Superficie
- 52 mq
- Locali
- 3
- Camere da letto
- 1
- Cucina
- Angolo cottura
- Bagni
- 1
- Piano
- Piano terra
- Box/Posto auto
- Singolo
CARATTERISTICHE
Giardino privato
COSTI
- Prezzo
- € 90.000,00
EFFICIENZA ENERGETICA
- Stato
- Nuovo/In costruzione
- Riscaldamento
- Autonomo
- Climatizzazione
- Predisposizione
- Classe energetica
- F
A+
A
B
C
D
E
Classe energetica F
F
G
CONTATTA L'INSERZIONISTA
- Aggiornato al 16 feb 2026
MUTUO
Annunci immobiliari da Privati a Poggio Renatico
Comune di Poggio Renatico
- Vendesi appartamenti senza provvigioni Poggio Renatico
- Vendita case da privato Poggio Renatico
- Vendita trilocali no agenzia Poggio Renatico
Provincia di Ferrara
Annunci simili
€ 159.000
- 5 locali
- 110 mq
