Privato Vende
€ 99.000
- 2 locali
- 69 mq
- 1 bagno
Appartamento in Vendita da Privato a Torino
APPARTAMENTO RISTRUTTURATO C.SO TARANTO, 69 MQ
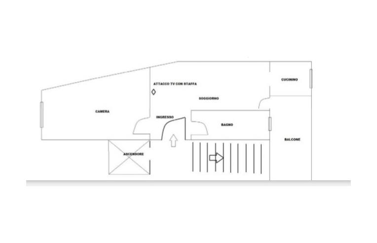
PRIVATO VENDE, NELLA PARTE BELLA DI BARRIERA, APPARTAMENTO TERZO PIANO CON ASCENSORE LIBERO DA SUBITO IN CORSO TARANTO, 70 SCALA B , DI MQ.69,
COMPOSTO DA INGRESSO, CAMERA DA LETTO, SOGGIORNO LIVING, CUCININO, E BAGNO. BALCONE _APPARTAMENTO SOTTOPOSTO A COMPLETA E RECENTE RISTRUTTURAZIONE CON COLORI E FINITURE DI PREGIO.
IMPIANTO ELETTRICO CON RELE’ E PULSANTI A PIÙ PUNTI E CON TAPPARELLE ELETTRICHE;IMPIANTO GAS NUOVISSIMO RISALE ALL’ULTIMA RISTRUTTURAZIONE;
IMPIANTO ACQUA NUOVO RISALE ALL’ULTIMA RISTRUTTURAZIONE CON CALDAIA GAS PER PRODUZIONE ACQUA CALDA, E PORTA BLINDATA NUOVA.
INGRESSO CHE DA SUL SOGGIORNO LIVING, CON CONTROSOFFITTATURA E FARETTI, SOGGIORNO CON ARREDAMENTO COLOR ROVERE WENGÈ E PARETE IN PIETRA CON ATTACCO E STAFFA PER TV;
CAMERA DA LETTO CON PAVIMENTO NUOVO IMPIANTO ELETTRICO NUOVO E TAPPARELLE ELETTRICHE;
CUCININO COMPLETAMENTE RISTRUTTURATO E ARREDATO SU MISURA COMPLETO DI ELETTRODOMESTICI
(CAPPA A CAMINO, FORNO E
LAVASTOVIGLIE)
ALL’INTERNO DEL CUCININO VI È UNA COMODA FINESTRA CHE DA LUCE A TUTTA LA CASA;
BAGNO RISTRUTTURATO E BEN ARREDATO CON MOBILE SOTTO LAVABO, LAVABO E SPECCHIERA CON FARETTI, PIASTRELLE MOSAICO COLOR BIANCO/AZZURRO BOX DOCCIA IN ALLUMINIO E VETRO E DIVIDE IL TUTTO UNA PARETE IN VETROCEMENTO;
DAL SOGGIORNO SI ACCEDE MEDIANTE PORTA FINESTRA AL BALCONE ESTERNO DI CIRCA 4 X 1.5 METRI
DA EVIDENZIARE:
LA COMODA CANTINA ALLA QUALE SI PUO ACCEDERE PER CARICO E SCARICO MERCI DAL CORTILE CHIUSO DA CANCELLO ELETTRICO AUTOMATICO.
SPESE (50,00 CIRCA MENSILI PER CONDOMINIO COMPRESO ANCHE LA PORTINERIA E 115,00 CIRCA MENSILI PER I MESI DI
RISCALDAMENTO CENTRALIZZATO)
LA ZONA E' COMODA A TUTTI I SERVIZI E VICINO A CENTRI COMMERCIALI, OSPEDALE, SCUOLA, CHIESA, NONCHÉ TANGENZIALE, E VICINO AI COMUNI DI SAN MAURO T.SE , SETTIMO T.SE .
INOLTRE SONO GIA' IN PROGRAMMA ALTRI LAVORI ALLA METROPOLITANA CHE RENDERANNO QUESTA ZONA ANCOR PIU' COMODA.
ASTENERSI PERDITEMPO E AGENZIE
CHIEDERE DI
GENNARO TEL.
LEGGI TUTTO...
COMPOSTO DA INGRESSO, CAMERA DA LETTO, SOGGIORNO LIVING, CUCININO, E BAGNO. BALCONE _APPARTAMENTO SOTTOPOSTO A COMPLETA E RECENTE RISTRUTTURAZIONE CON COLORI E FINITURE DI PREGIO.
IMPIANTO ELETTRICO CON RELE’ E PULSANTI A PIÙ PUNTI E CON TAPPARELLE ELETTRICHE;IMPIANTO GAS NUOVISSIMO RISALE ALL’ULTIMA RISTRUTTURAZIONE;
IMPIANTO ACQUA NUOVO RISALE ALL’ULTIMA RISTRUTTURAZIONE CON CALDAIA GAS PER PRODUZIONE ACQUA CALDA, E PORTA BLINDATA NUOVA.
INGRESSO CHE DA SUL SOGGIORNO LIVING, CON CONTROSOFFITTATURA E FARETTI, SOGGIORNO CON ARREDAMENTO COLOR ROVERE WENGÈ E PARETE IN PIETRA CON ATTACCO E STAFFA PER TV;
CAMERA DA LETTO CON PAVIMENTO NUOVO IMPIANTO ELETTRICO NUOVO E TAPPARELLE ELETTRICHE;
CUCININO COMPLETAMENTE RISTRUTTURATO E ARREDATO SU MISURA COMPLETO DI ELETTRODOMESTICI
(CAPPA A CAMINO, FORNO E
LAVASTOVIGLIE)
ALL’INTERNO DEL CUCININO VI È UNA COMODA FINESTRA CHE DA LUCE A TUTTA LA CASA;
BAGNO RISTRUTTURATO E BEN ARREDATO CON MOBILE SOTTO LAVABO, LAVABO E SPECCHIERA CON FARETTI, PIASTRELLE MOSAICO COLOR BIANCO/AZZURRO BOX DOCCIA IN ALLUMINIO E VETRO E DIVIDE IL TUTTO UNA PARETE IN VETROCEMENTO;
DAL SOGGIORNO SI ACCEDE MEDIANTE PORTA FINESTRA AL BALCONE ESTERNO DI CIRCA 4 X 1.5 METRI
DA EVIDENZIARE:
LA COMODA CANTINA ALLA QUALE SI PUO ACCEDERE PER CARICO E SCARICO MERCI DAL CORTILE CHIUSO DA CANCELLO ELETTRICO AUTOMATICO.
SPESE (50,00 CIRCA MENSILI PER CONDOMINIO COMPRESO ANCHE LA PORTINERIA E 115,00 CIRCA MENSILI PER I MESI DI
RISCALDAMENTO CENTRALIZZATO)
LA ZONA E' COMODA A TUTTI I SERVIZI E VICINO A CENTRI COMMERCIALI, OSPEDALE, SCUOLA, CHIESA, NONCHÉ TANGENZIALE, E VICINO AI COMUNI DI SAN MAURO T.SE , SETTIMO T.SE .
INOLTRE SONO GIA' IN PROGRAMMA ALTRI LAVORI ALLA METROPOLITANA CHE RENDERANNO QUESTA ZONA ANCOR PIU' COMODA.
ASTENERSI PERDITEMPO E AGENZIE
CHIEDERE DI
GENNARO TEL.
DATI PRINCIPALI
- Riferimento
- 344960
- Contratto
- Vendita
- Tipologia
- Appartamento
- Superficie
- 69 mq
- Locali
- 2
- Camere da letto
- 1
- Cucina
- Cucinotto
- Bagni
- 1
- Piano
- 3 ° con ascensore
- Totale piani
- 7
- Box/Posto auto
- No
CARATTERISTICHE
Balcone
Terrazzo
Giardino
Ascensore
Semi-arredato
Cantina
COSTI
- Prezzo
- € 99.000,00
EFFICIENZA ENERGETICA
- Stato
- Ristrutturato
- Anno costruzione
- 1965
- Riscaldamento
- Centralizzato
- Climatizzazione
- Si
- Classe energetica
- E
A+
A
B
C
D
Classe energetica E
E
F
G
MAPPA
CONTATTA L'INSERZIONISTA
- Aggiornato al 13 feb 2026
MUTUO
Annunci immobiliari da Privati a Torino
Comune di Torino
- Vendesi appartamenti senza provvigioni Torino
- Vendita case senza agenzia Torino
- Vendita bilocali no agenzia Torino
- Vendita case senza intermediari zona Barriera Milano, Torino
Provincia di Torino
Annunci simili
€ 120.000
- 3 locali
- 90 mq
€ 120.000
- 3 locali
- 85 mq
