Privato Vende
Trattativa Riservata
- Più di 5 locali
- 140 mq
- 2 bagni
Appartamento in Vendita da Privato a Reggio Calabria
Appartamento ristrutturato. Ottime rifiniture
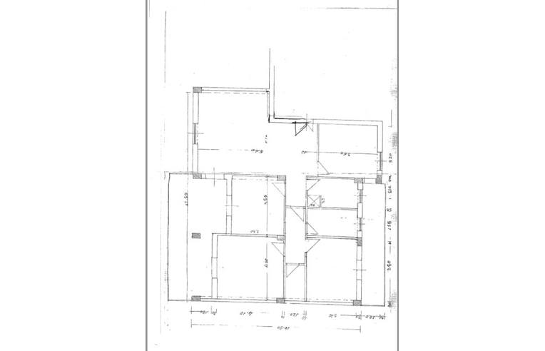
2° piano luminoso 140 mq calpestabili. interamente ristrutturato, parzialmente arredato, ottime rifiniture, in condominio tranquillo con ampi spazi condominali, posto auto in garage coperto, posti auto esterni, cantina 16 mq.
Composto da ingresso, salone, cucina, 3 camere da letto, 2 bagni, ripostiglio, balcone e ampia veranda. Dotato di condizionatori, parquet in tutte le stanze, tende da sole esterne, zanzariere in tutte le stanze, cassaforte.
Composto da ingresso, salone, cucina, 3 camere da letto, 2 bagni, ripostiglio, balcone e ampia veranda. Dotato di condizionatori, parquet in tutte le stanze, tende da sole esterne, zanzariere in tutte le stanze, cassaforte.
DATI PRINCIPALI
- Riferimento
- 74637
- Contratto
- Vendita
- Tipologia
- Appartamento
- Superficie
- 140 mq
- Locali
- Più di 5
- Camere da letto
- 3
- Cucina
- Abitabile
- Bagni
- 2
- Piano
- 2 ° con ascensore
- Totale piani
- 5
- Box/Posto auto
- Posto auto coperto
CARATTERISTICHE
Balcone
Terrazzo
Giardino comune
Ascensore
Semi-arredato
Cantina
COSTI
- Prezzo
- Trattativa Riservata
EFFICIENZA ENERGETICA
- Stato
- Ristrutturato
- Riscaldamento
- Autonomo
- Climatizzazione
- Si
CONTATTA L'INSERZIONISTA
- Aggiornato al 26 set 2025
Annunci immobiliari da Privati a Reggio Calabria
Comune di Reggio Calabria
- Vendesi appartamenti senza intermediari Reggio Calabria
- Case in vendita senza provvigioni Reggio Calabria
Provincia di Reggio Calabria
Annunci simili
€ 118.000
- 5+ locali
- 120 mq
Trattativa Riservata
- 5+ locali
- 130 mq
€ 260.000
- 5+ locali
- 220 mq
