Privato Vende
Trattativa Riservata
- 2 locali
- 70 mq
- 1 bagno
Appartamento in Vendita da Privato a Roma
Appartamento Roma zona Talenti
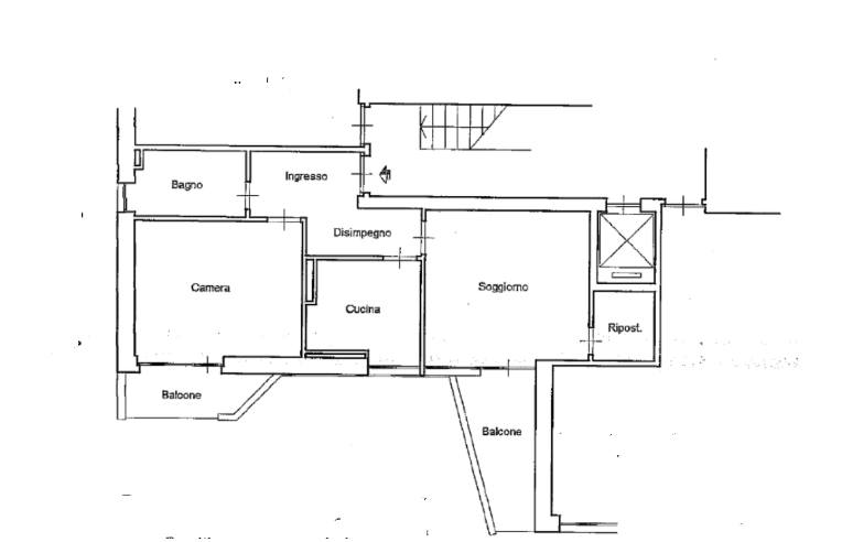
Nella ricercata zona Talenti, proponiamo in vendita un delizioso appartamento di 70 mq al terzo piano in una palazzina con ascensore ed ha affacci aperti e molto luminosi con doppia esposizione (est-sud).
L'appartamento è composto da ampio ingresso, disimpegno, due camere, cucina , bagno, ripostiglio, balcone e terrazzo.
L'appartamento è ristrutturato, con infissi nuovi in doppio vetro, tapparelle nuove e condizionatori nelle stanze.
Nelle immediate vicinanze sono presenti tutti i servizi di prima necessità, nonché i capolinea di numerose linee di bus che collegano l'appartamento in poco tempo con la stazione metro Jonio.
LEGGI TUTTO...
L'appartamento è composto da ampio ingresso, disimpegno, due camere, cucina , bagno, ripostiglio, balcone e terrazzo.
L'appartamento è ristrutturato, con infissi nuovi in doppio vetro, tapparelle nuove e condizionatori nelle stanze.
Nelle immediate vicinanze sono presenti tutti i servizi di prima necessità, nonché i capolinea di numerose linee di bus che collegano l'appartamento in poco tempo con la stazione metro Jonio.
DATI PRINCIPALI
- Riferimento
- 412684
- Contratto
- Vendita
- Tipologia
- Appartamento
- Superficie
- 70 mq
- Locali
- 2
- Camere da letto
- 2
- Cucina
- Abitabile
- Bagni
- 1
- Piano
- 3 ° con ascensore
- Totale piani
- 5
- Box/Posto auto
- No
CARATTERISTICHE
Balcone
Terrazzo
Giardino
Ascensore
Semi-arredato
Cantina
COSTI
- Prezzo
- Trattativa Riservata
EFFICIENZA ENERGETICA
- Stato
- Ristrutturato
- Anno costruzione
- 1955
- Riscaldamento
- Centralizzato
- Climatizzazione
- Si
- Classe energetica
- G
A+
A
B
C
D
E
F
Classe energetica G
G
CONTATTA L'INSERZIONISTA
- Annuncio del 22 feb 2026
Annunci immobiliari da Privati a Roma
Comune di Roma
- Vendita appartamenti da privati Roma
- Vendesi case senza agenzia Roma
- Bilocali in vendita da privato Roma
- Vendita case senza provvigioni zona Talenti, Roma
