Privato Vende
€ 165.000
- 4 locali
- 100 mq
- 2 bagni
Appartamento in Vendita da Privato a Francavilla al Mare
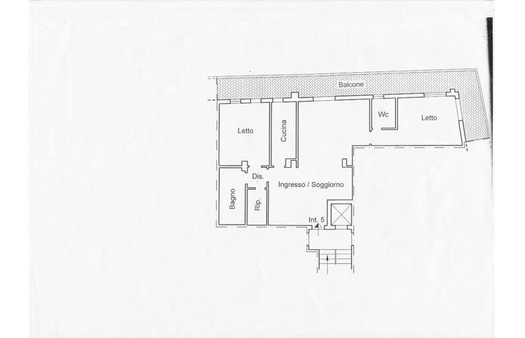
Appartamento Via Portanuova - Francavilla al mare
Grazioso appartamento a pochi metri dal mare, al secondo piano di una tranquilla palazzina nei pressi della piazza del Municipio.
Ampissimo ingresso-soggiorno, cucina abitabile, due camere matrimoniali entrambe con bagno annesso, comodo ripostiglio.
Balcone perimetrale con vista mare.
Ampissimo ingresso-soggiorno, cucina abitabile, due camere matrimoniali entrambe con bagno annesso, comodo ripostiglio.
Balcone perimetrale con vista mare.
DATI PRINCIPALI
- Riferimento
- 248769
- Contratto
- Vendita
- Tipologia
- Appartamento
- Superficie
- 100 mq
- Locali
- 4
- Camere da letto
- 2
- Cucina
- Abitabile
- Bagni
- 2
- Piano
- 2 ° con ascensore
- Totale piani
- 3
- Box/Posto auto
- No
CARATTERISTICHE
Balcone
Terrazzo
Giardino
Ascensore
Arredato
Cantina
COSTI
- Prezzo
- € 165.000,00
EFFICIENZA ENERGETICA
- Stato
- Abitabile
- Riscaldamento
- Autonomo
- Climatizzazione
- No
- Classe energetica
- D
A+
A
B
C
Classe energetica D
D
E
F
G
CONTATTA L'INSERZIONISTA
- Aggiornato al 06 nov 2025
MUTUO
Annunci immobiliari da Privati a Francavilla al Mare
Comune di Francavilla al Mare
- Vendesi appartamenti da privato Francavilla al Mare
- Vendesi case da privati Francavilla al Mare
- Vendesi quadrilocali da proprietario Francavilla al Mare
Provincia di Chieti
Annunci simili
€ 254.000
- 5+ locali
- 125 mq
€ 130.000
- 5+ locali
- 112 mq
€ 150.000
- 5 locali
- 130 mq
