Privato Vende
€ 105.000
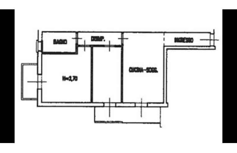
- 4 locali
- 60 mq
- 1 bagno
Appartamento in Vendita da Privato a Santa Maria a Monte
Appartamento zona residenziale
Appartamento al secondo piano in zona centrale davanti piazza è parco giochi per bambini,a 100 metri da asilo,scuole elementari, quattro locali è mezzo più garage,e posto auto interno più due terrazzi.il prezzo è € 92000,00 per informazioni telefonare al ore serali grazie.
DATI PRINCIPALI
- Riferimento
- 207158
- Contratto
- Vendita
- Tipologia
- Appartamento
- Superficie
- 60 mq
- Locali
- 4
- Camere da letto
- 2
- Cucina
- Abitabile
- Bagni
- 1
- Piano
- 2 °
- Totale piani
- 1
- Box/Posto auto
- Posto auto coperto
CARATTERISTICHE
Balcone
Terrazzo
Ascensore
COSTI
- Prezzo
- € 105.000,00
EFFICIENZA ENERGETICA
- Stato
- Abitabile
- Anno costruzione
- 2004
- Riscaldamento
- Autonomo
- Climatizzazione
- Si
- Classe energetica
- F
A+
A
B
C
D
E
Classe energetica F
F
G
CONTATTA L'INSERZIONISTA
- Aggiornato al 10 feb 2026
MUTUO
Annunci immobiliari da Privati a Santa Maria a Monte
Comune di Santa Maria a Monte
- Vendita appartamenti no agenzia Santa Maria a Monte
- Vendita case senza agenzia Santa Maria a Monte
- Quadrilocali in vendita da privato Santa Maria a Monte
