Privato Affitta
€ 780
- 4 locali
- 72 mq
Appartamento in Affitto da Privato a Torino
Corso san Maurizio
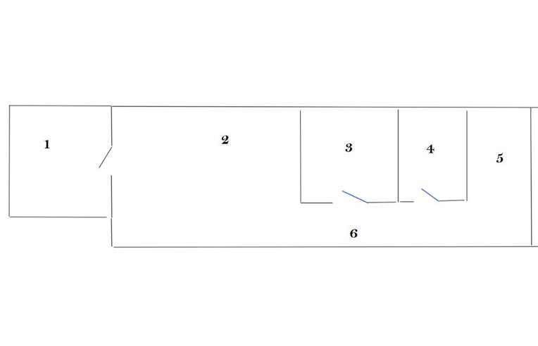
Arredato, termoautonomo. 1-camera 2-living 3camera 4-bagno 5-cucina 6-corridoio.
DATI PRINCIPALI
- Riferimento
- 304021
- Contratto
- Affitto
- Tipologia
- Appartamento
- Superficie
- 72 mq
- Locali
- 4
COSTI
- Canone
- Affitto € 780,00 al mese
- Tipo locazione
- 4+4
- Spese condominiali
- € 50,00 / mese, incluse nel canone
EFFICIENZA ENERGETICA
- Classe energetica
- B
A+
A
Classe energetica B
B
C
D
E
F
G
CONTATTA L'INSERZIONISTA
- Aggiornato al 30 set 2025
Annunci immobiliari da Privati a Torino
Comune di Torino
- Affittasi appartamenti senza intermediari Torino
- Case in affitto da proprietario Torino
- Quadrilocali in affitto senza agenzia Torino
- Affittasi case da privato zona Vanchiglia, Torino
Provincia di Torino
Annunci simili
Trattativa Riservata
- 5 locali
- 70 mq
€ 299
- 5 locali
- 120 mq
