Privato Vende
€ 500.000
- 3 locali
- 186 mq
- 3 bagni
Appartamento in Vendita da Privato a Cinisello Balsamo
Luminoso trilocale con Mansarda, 2 Box Auto e cantina
In un contesto residenziale tranquillo e riservato, costituito da un complesso di quattro palazzine con mattoni a vista di soli due piani, proponiamo in vendita uno splendido appartamento situato al secondo ed ultimo piano.
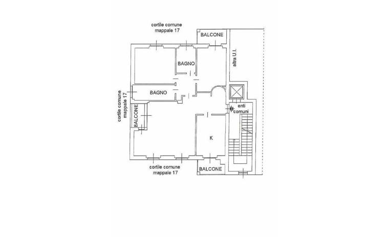
L'immobile, in ottime condizioni generali, si apre su una zona giorno accogliente e funzionale: troviamo una sala spaziosa e molto luminosa con accesso diretto a uno dei balconi, e una cucina abitabile separata, ideale per chi ama vivere la convivialità, con affaccio sul secondo balcone.
La zona notte è composta da due camere da letto, di cui una con affaccio sul terzo balcone, e due bagni finestrati, uno dotato di vasca per il relax e l'altro di un comodo box doccia.
Punto di forza dell'immobile è la presenza di una mansarda adibita a zona lavanderia/hobby, che aggiunge spazio prezioso alla metratura.
Le finiture includono infissi in legno con doppio vetro, garantendo un ottimo isolamento termico e acustico, pavimentazione in marmo nella zona giorno e parquet nelle due camere da letto.
La proprietà è completata da una cantina e ben due box auto, una rarità che risolve ogni problema di parcheggio e stoccaggio.
Soluzione perfetta per famiglie alla ricerca di spazi ampi, tranquillità e nessuna spesa di ristrutturazione imminente.
La zona è ben servita infatti è possibile raggiungere a piedi l'Esselunga, l'Unes, la farmacia e il Parco Nord e a pochi metri si trova la fermata dell'autobus linea 728 e 729.
Nel prezzo è compreso un box, con la possibilità di acquistare il secondo a 25.000 Euro
LEGGI TUTTO...
L'immobile, in ottime condizioni generali, si apre su una zona giorno accogliente e funzionale: troviamo una sala spaziosa e molto luminosa con accesso diretto a uno dei balconi, e una cucina abitabile separata, ideale per chi ama vivere la convivialità, con affaccio sul secondo balcone.
La zona notte è composta da due camere da letto, di cui una con affaccio sul terzo balcone, e due bagni finestrati, uno dotato di vasca per il relax e l'altro di un comodo box doccia.
Punto di forza dell'immobile è la presenza di una mansarda adibita a zona lavanderia/hobby, che aggiunge spazio prezioso alla metratura.
Le finiture includono infissi in legno con doppio vetro, garantendo un ottimo isolamento termico e acustico, pavimentazione in marmo nella zona giorno e parquet nelle due camere da letto.
La proprietà è completata da una cantina e ben due box auto, una rarità che risolve ogni problema di parcheggio e stoccaggio.
Soluzione perfetta per famiglie alla ricerca di spazi ampi, tranquillità e nessuna spesa di ristrutturazione imminente.
La zona è ben servita infatti è possibile raggiungere a piedi l'Esselunga, l'Unes, la farmacia e il Parco Nord e a pochi metri si trova la fermata dell'autobus linea 728 e 729.
Nel prezzo è compreso un box, con la possibilità di acquistare il secondo a 25.000 Euro
DATI PRINCIPALI
- Riferimento
- 408945
- Contratto
- Vendita
- Tipologia
- Appartamento
- Superficie
- 186 mq
- Locali
- 3
- Camere da letto
- 2
- Bagni
- 3
- Piano
- 2 ° con ascensore
- Totale piani
- 2
- Box/Posto auto
- Doppio
CARATTERISTICHE
Balcone
Terrazzo
Ascensore
Semi-arredato
Cantina
COSTI
- Prezzo
- € 500.000,00
EFFICIENZA ENERGETICA
- Stato
- Abitabile
- Riscaldamento
- Autonomo
MAPPA
CONTATTA L'INSERZIONISTA
- Aggiornato al 03 mar 2026
MUTUO
Annunci immobiliari da Privati a Cinisello Balsamo
Comune di Cinisello Balsamo
- Vendita appartamenti no agenzia Cinisello Balsamo
- Vendita case senza agenzia Cinisello Balsamo
- Vendesi trilocali senza intermediari Cinisello Balsamo
Provincia di Milano
Annunci simili
Trattativa Riservata
- 4 locali
- 135 mq
Trattativa Riservata
- 4 locali
- 100 mq
