Privato Vende
€ 90.000
- 5 locali
- 100 mq
- 1 bagno
Appartamento in Vendita da Privato a Oristano
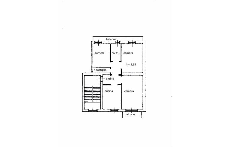
ORISTANO CENTRO - APPARTAMENTO 100 mq
ORISTANO - IN CENTRALISSIMA VIA VERDI, 28 - VENDESI APPARTAMENTO DA 100 MQ CIRCA - E' DA RISTRUTTURARE - POSTO AL PRIMO PIANO IN PALAZZINA DI TRE - IL PREZZO E' DI 90.000,00 EURO - CLASSE ENERGETICA G
PREZZO 90.000 euro - rispondo solo al telefono:
PREZZO 90.000 euro - rispondo solo al telefono:
DATI PRINCIPALI
- Riferimento
- 105757
- Contratto
- Vendita
- Tipologia
- Appartamento
- Superficie
- 100 mq
- Locali
- 5
- Camere da letto
- 3
- Cucina
- Abitabile
- Bagni
- 1
- Piano
- 1 °
- Totale piani
- 3
- Box/Posto auto
- No
CARATTERISTICHE
Balcone
Terrazzo
Giardino
Ascensore
Arredato
Cantina
COSTI
- Prezzo
- € 90.000,00
EFFICIENZA ENERGETICA
- Stato
- Da ristrutturare
- Riscaldamento
- Assente
- Climatizzazione
- No
- Classe energetica
- G
A+
A
B
C
D
E
F
Classe energetica G
G
CONTATTA L'INSERZIONISTA
- Aggiornato al 08 set 2025
MUTUO
Annunci immobiliari da Privati a Oristano
Comune di Oristano
Provincia di Oristano
Annunci simili
Trattativa Riservata
- 5+ locali
- 200 mq
