Privato Vende
€ 160.000
- 3 locali
- 84 mq
- 1 bagno
Appartamento in Vendita da Privato a Commezzadura
ottimo appartamento con splendido terrazzo affare
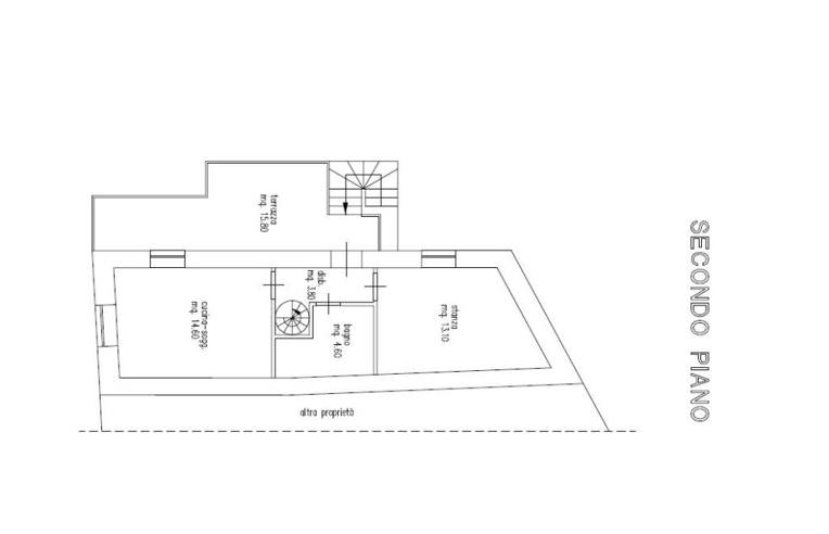
L'appartamento con ingresso indipendente è situato nel centro storico di Piano di Commezzadura, gode di un ottima esposizione ed è situato al secondo piano di un maso ristrutturato.
L'appartamento su due livelli è cosi costituito:
- al primo piano ampia camera matrimoniale, soggiorno-cucina, bagno e stufa ad ole.
- piano superiore ampia camera matrimoniale.
Dotato di riscaldamento autonomo e di un grande terrazzo di 25mq dal quale si gode la veduta panoramica della valle.
L'appartamento è vicino ai nuovi impianti di risalita di Daolasa che portano alle piste da sci di Marilleva, Folgarida, Madonna di Campiglio e Pinzolo.
LEGGI TUTTO...
L'appartamento su due livelli è cosi costituito:
- al primo piano ampia camera matrimoniale, soggiorno-cucina, bagno e stufa ad ole.
- piano superiore ampia camera matrimoniale.
Dotato di riscaldamento autonomo e di un grande terrazzo di 25mq dal quale si gode la veduta panoramica della valle.
L'appartamento è vicino ai nuovi impianti di risalita di Daolasa che portano alle piste da sci di Marilleva, Folgarida, Madonna di Campiglio e Pinzolo.
DATI PRINCIPALI
- Riferimento
- 46840
- Contratto
- Vendita
- Tipologia
- Appartamento
- Superficie
- 84 mq
- Locali
- 3
- Camere da letto
- 2
- Cucina
- Abitabile
- Bagni
- 1
- Piano
- 2 °
- Totale piani
- 2
- Box/Posto auto
- No
CARATTERISTICHE
Balcone
Terrazzo
Giardino
Ascensore
Cantina
COSTI
- Prezzo
- € 160.000,00
EFFICIENZA ENERGETICA
- Stato
- Ristrutturato
- Riscaldamento
- Autonomo
- Classe energetica
- E
A+
A
B
C
D
Classe energetica E
E
F
G
CONTATTA L'INSERZIONISTA
- Aggiornato al 06 nov 2025
MUTUO
Annunci immobiliari da Privati a Commezzadura
Comune di Commezzadura
- Vendita appartamenti da privati Commezzadura
- Vendita case senza agenzia Commezzadura
- Vendesi trilocali da proprietario Commezzadura
Provincia di Trento
Annunci simili
€ 150.000
- 5 locali
- 100 mq
