Privato Vende
Trattativa Riservata
- Più di 5 locali
- 239 mq
- 2 bagni
Appartamento in Vendita da Privato a Palermo
PANORAMICO 7 VANI, LEONARDO DA VINCI, TRIPLO PROSPETTO
N.B.: Si valutano proposte serie e proporzionali alla richiesta iniziale.
L’edificio, per la sua ubicazione, costituisce un’interessante opportunità per chi desidera a portata di mano tutti i servizi (commerciali, pubblici e scuole di ogni ordine e grado) e desidera godere di un ampio e signorile appartamento in zona altamente prestigiosa. Arricchita dalla presenza dell’adiacente Villa Tricoli che permette d’usufruirne per attività sportive, ludiche per i bimbi e di un ampio spazio per i cani.
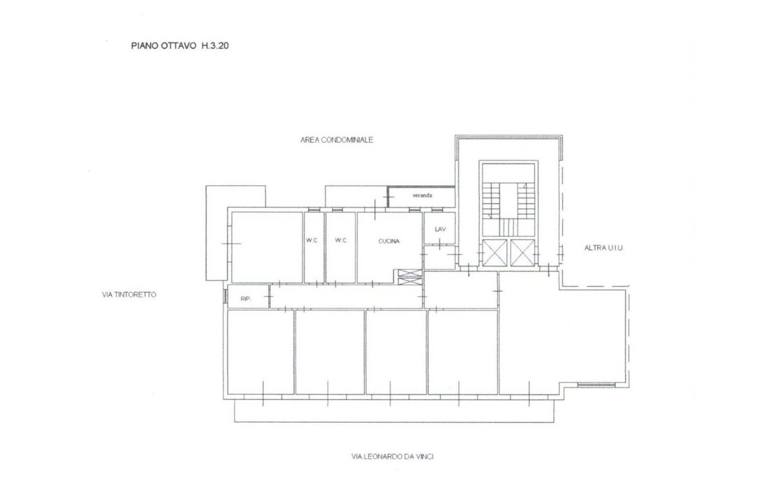
Situato all’8° piano di un elegante stabile, l’appartamento, che vanta una metratura generosa di mq. 239, è diviso in 7 vani particolarmente ampi dalle larghe aperture, gode di una tripla esposizione e di un magnifico panorama, data l’altezza del piano e l’assenza di edifici nelle immediate vicinanze e grazie a 3 balconi dei quali quello a prospetto principale di ben 20 mt. su via Leonardo Da Vinci, un secondo angolare su via Tintoretto ed un terzo in cucina su via Campolo.
Gli ambienti ben distribuiti e assai luminosi rendono l’appartamento elegante, piacevole e funzionale, adattabile a qualsiasi soluzione.
DISTRIBUZIONE INTERNA:
-Doppi ingressi blindati di cui uno molto ampio.
-Salone doppio molto ampio (c.a. 56 mq.) che presenta una particolare pavimentazione in maiolica di prestigio e di altissima qualità.
-Corridoio di 9 mt. con armadio a muro.
-5 ampie camere (c.a. 22 mq.) di cui una separata dal salone da due archi.
-Cucina abitabile con armadio dispensa e balcone per metà verandato e sanato.
-2 servizi comodi e finestrati (vasca/doccia)
-2 ripostigli finestrati uno dei quali con soppalco eventuale 3° wc ripristinabile.
L’immobile è dotato d’ogni confort, gode di servizio portierato AM/PM, videosorveglianza, videocitofono, fibra ottica ed è corredato di tutta la documentazione necessaria per il rogito (urbanistica, catastale e legale) recentemente aggiornata.
Altre info chiamando al .
LEGGI TUTTO...
L’edificio, per la sua ubicazione, costituisce un’interessante opportunità per chi desidera a portata di mano tutti i servizi (commerciali, pubblici e scuole di ogni ordine e grado) e desidera godere di un ampio e signorile appartamento in zona altamente prestigiosa. Arricchita dalla presenza dell’adiacente Villa Tricoli che permette d’usufruirne per attività sportive, ludiche per i bimbi e di un ampio spazio per i cani.
Situato all’8° piano di un elegante stabile, l’appartamento, che vanta una metratura generosa di mq. 239, è diviso in 7 vani particolarmente ampi dalle larghe aperture, gode di una tripla esposizione e di un magnifico panorama, data l’altezza del piano e l’assenza di edifici nelle immediate vicinanze e grazie a 3 balconi dei quali quello a prospetto principale di ben 20 mt. su via Leonardo Da Vinci, un secondo angolare su via Tintoretto ed un terzo in cucina su via Campolo.
Gli ambienti ben distribuiti e assai luminosi rendono l’appartamento elegante, piacevole e funzionale, adattabile a qualsiasi soluzione.
DISTRIBUZIONE INTERNA:
-Doppi ingressi blindati di cui uno molto ampio.
-Salone doppio molto ampio (c.a. 56 mq.) che presenta una particolare pavimentazione in maiolica di prestigio e di altissima qualità.
-Corridoio di 9 mt. con armadio a muro.
-5 ampie camere (c.a. 22 mq.) di cui una separata dal salone da due archi.
-Cucina abitabile con armadio dispensa e balcone per metà verandato e sanato.
-2 servizi comodi e finestrati (vasca/doccia)
-2 ripostigli finestrati uno dei quali con soppalco eventuale 3° wc ripristinabile.
L’immobile è dotato d’ogni confort, gode di servizio portierato AM/PM, videosorveglianza, videocitofono, fibra ottica ed è corredato di tutta la documentazione necessaria per il rogito (urbanistica, catastale e legale) recentemente aggiornata.
Altre info chiamando al .
DATI PRINCIPALI
- Riferimento
- 413997
- Contratto
- Vendita
- Tipologia
- Appartamento
- Superficie
- 239 mq
- Locali
- Più di 5
- Camere da letto
- 4
- Cucina
- Abitabile
- Bagni
- 2
- Piano
- Più di 7 piani con ascensore
- Totale piani
- 13
CARATTERISTICHE
Balcone
Terrazzo
Ascensore
Arredato
COSTI
- Prezzo
- Trattativa Riservata
EFFICIENZA ENERGETICA
- Stato
- Abitabile
- Anno costruzione
- 1968
- Riscaldamento
- Autonomo
- Climatizzazione
- Si
- Classe energetica
- E
- IPE
- 121,50 kWh/m²a
A+
A
B
C
D
121,50 kWh/m²a | Classe energetica E
E
F
G
MAPPA
CONTATTA L'INSERZIONISTA
- Annuncio del 21 mar 2026
Annunci immobiliari da Privati a Palermo
Comune di Palermo
- Vendita appartamenti senza provvigioni Palermo
- Vendita case da privati Palermo
- Vendesi case da proprietario zona Galilei, Palermo
Provincia di Palermo
Annunci simili
€ 285.000
- 5+ locali
- 165 mq
Trattativa Riservata
- 5+ locali
- 180 mq
