Privato Vende
€ 280.000
- 4 locali
- 140 mq
Appartamento in Vendita da Privato a Salò
QUADRILOCALE molto grande a Salò (direttamente da privati)
QUADRILOCALE molto grande (mq comm. 140) direttamente da privati.
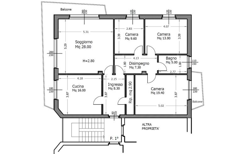
Composto da: salone di forma regolare con doppio affaccio e balcone, grande cucina-pranzo separata e con accesso diretto al balcone, tre camere da letto delle quali la matrimoniale con balcone, bagno con ampia finestra, ingresso, anticamera, comodo ripostiglio e cantina (oltre a stenditoio e locale lavanderia comuni). L’appartamento è situato al piano primo ed è totalmente libero su tre lati. Le ampie finestre e porte finestre situate su tutti i tre lati liberi rendono l’appartamento molto luminoso in qualsiasi ora della giornata, con un ottimo contributo solare anche sotto il profilo del consumo energetico invernale, oltre alla possibilità di avere un buon “riscontro” d’aria nelle giornate più calde dell’anno (è comunque presente un condizionatore nell’anticamera).
Le varie aperture offrono gradevoli scorci prospettici sul panorama circostante (vedasi fotografie allegate).
E’ l’appartamento ideale per chiunque abbia necessità di tre camere, oppure desideri avere un locale in più per il proprio lavoro (anche con funzione “smart working”) o per qualsiasi altra necessità.
La forma regolare e molto ampia dei vari locali consente di apportare eventuali future modifiche distributive in base alle diverse esigenze: come la possibilità di ottenere un’ulteriore stanza e/o un secondo bagno.
L’altezza interna (h=2,80) superiore a quella minima di legge (h=2,70), rende gli ampi spazi molto piacevoli e ariosi, consentendo inoltre l’eventuale esecuzione di controsoffitti per una maggiore flessibilità di eventuali nuove componenti impiantistiche.
La palazzina presenta una dimensione ridotta (a “misura d’uomo”) ed è composta da soli 9 appartamenti. La zona residenziale è molto tranquilla, fresca d’estate e comoda al centro (anche a piedi).
L’appartamento può essere venduto arredato o libero.
Classe energetica E.
[Astenersi agenzie e/o intermediari].
LEGGI TUTTO...
Composto da: salone di forma regolare con doppio affaccio e balcone, grande cucina-pranzo separata e con accesso diretto al balcone, tre camere da letto delle quali la matrimoniale con balcone, bagno con ampia finestra, ingresso, anticamera, comodo ripostiglio e cantina (oltre a stenditoio e locale lavanderia comuni). L’appartamento è situato al piano primo ed è totalmente libero su tre lati. Le ampie finestre e porte finestre situate su tutti i tre lati liberi rendono l’appartamento molto luminoso in qualsiasi ora della giornata, con un ottimo contributo solare anche sotto il profilo del consumo energetico invernale, oltre alla possibilità di avere un buon “riscontro” d’aria nelle giornate più calde dell’anno (è comunque presente un condizionatore nell’anticamera).
Le varie aperture offrono gradevoli scorci prospettici sul panorama circostante (vedasi fotografie allegate).
E’ l’appartamento ideale per chiunque abbia necessità di tre camere, oppure desideri avere un locale in più per il proprio lavoro (anche con funzione “smart working”) o per qualsiasi altra necessità.
La forma regolare e molto ampia dei vari locali consente di apportare eventuali future modifiche distributive in base alle diverse esigenze: come la possibilità di ottenere un’ulteriore stanza e/o un secondo bagno.
L’altezza interna (h=2,80) superiore a quella minima di legge (h=2,70), rende gli ampi spazi molto piacevoli e ariosi, consentendo inoltre l’eventuale esecuzione di controsoffitti per una maggiore flessibilità di eventuali nuove componenti impiantistiche.
La palazzina presenta una dimensione ridotta (a “misura d’uomo”) ed è composta da soli 9 appartamenti. La zona residenziale è molto tranquilla, fresca d’estate e comoda al centro (anche a piedi).
L’appartamento può essere venduto arredato o libero.
Classe energetica E.
[Astenersi agenzie e/o intermediari].
DATI PRINCIPALI
- Riferimento
- 391383
- Contratto
- Vendita
- Tipologia
- Appartamento
- Superficie
- 140 mq
- Locali
- 4
COSTI
- Prezzo
- € 280.000,00
EFFICIENZA ENERGETICA
- Classe energetica
- E
- IPE
- 188,00 kWh/m²a
A+
A
B
C
D
188,00 kWh/m²a | Classe energetica E
E
F
G
MAPPA
CONTATTA L'INSERZIONISTA
- Aggiornato al 02 ago 2025
MUTUO
Annunci immobiliari da Privati a Salò
Comune di Salò
- Vendita appartamenti da privati Salò
- Vendesi case da privato Salò
- Vendesi quadrilocali da proprietario Salò
Provincia di Brescia
Annunci simili
Trattativa Riservata
- 5+ locali
- 106 mq
