Privato Vende
€ 340.000
- Più di 5 locali
- 200 mq
- 3 bagni
Appartamento in Vendita da Privato a Sassari
sassari fronte oviesse esavano ristrutturato
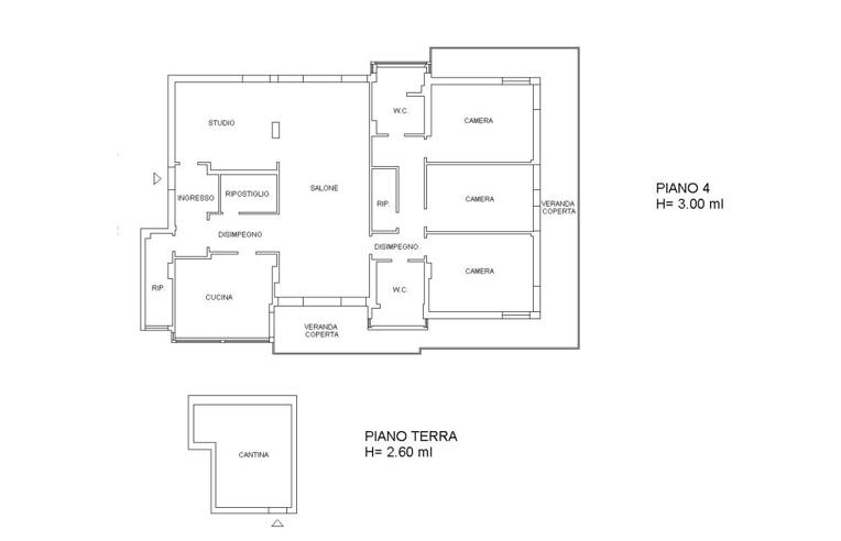
Cell.-SASSARI, VIA GRAMSCI FRONTE OVIESSE, CENTRALE appartamento finemente ristrutturato quarto piano, 180 mq + 40 mq terrazzi, tre letto, due bagni, lavanderia, salone,cucina, ingresso, guardaroba, ripostiglio, studio separato, posto auto coperto di proprietà e cantina. Riscaldamento centralizzato, impianto fotovoltaico di proprietà, caldaia collegata medea per produzione acqua calda. SI VALUTANO PERMUTE CON APPARTAMENTI PIU' PICCOLI. classe G - tel
DATI PRINCIPALI
- Riferimento
- 36983
- Contratto
- Vendita
- Tipologia
- Appartamento
- Superficie
- 200 mq
- Locali
- Più di 5
- Camere da letto
- 3
- Cucina
- Abitabile
- Bagni
- 3
- Piano
- 4 ° con ascensore
- Totale piani
- 5
- Box/Posto auto
- Posto auto coperto
CARATTERISTICHE
Balcone
Terrazzo
Giardino comune
Ascensore
Arredato
Cantina
COSTI
- Prezzo
- € 340.000,00
EFFICIENZA ENERGETICA
- Stato
- Ristrutturato
- Anno costruzione
- 1970
- Riscaldamento
- Centralizzato
- Climatizzazione
- Predisposizione
- Classe energetica
- G
A+
A
B
C
D
E
F
Classe energetica G
G
CONTATTA L'INSERZIONISTA
- Aggiornato al 24 dic 2025
