Privato Vende
€ 360.000
- 3 locali
- 82 mq
- 1 bagno
Appartamento in Vendita da Privato a Roma
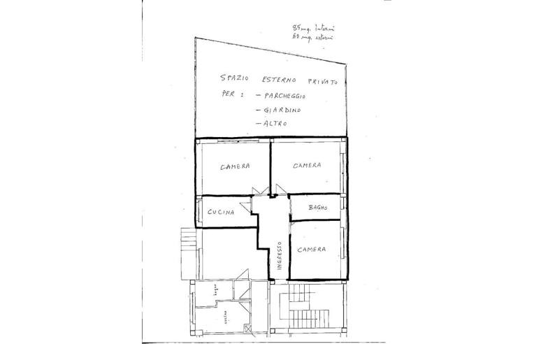
TRILOCALE DOPPIO INGRESSO E CORTE ESCLUSIVA
BALDO DEGLI UBALDI presso staz. Metro, Osp. S. Carlo e Vaticano app.to p.terra 82 mq. tre ampie camere ingresso cucina bagno tripla esposiz. luminoso clima autonomo dotato di due ingressi e di spazio esterno privato 60mq. Ottimo anche per società, enti, studi medici, attività professionali o commerciali, ecc. Vendesi con possibilità permute e dilazioni. Escluso agenzie e intermediari.
DATI PRINCIPALI
- Riferimento
- 100095
- Contratto
- Vendita
- Tipologia
- Appartamento
- Superficie
- 82 mq
- Locali
- 3
- Camere da letto
- 2
- Bagni
- 1
- Piano
- Piano terra
CARATTERISTICHE
Giardino privato
Arredato
COSTI
- Prezzo
- € 360.000,00
EFFICIENZA ENERGETICA
- Stato
- Ristrutturato
- Riscaldamento
- Autonomo
- Climatizzazione
- Si
- Classe energetica
- G
A+
A
B
C
D
E
F
Classe energetica G
G
CONTATTA L'INSERZIONISTA
- Aggiornato al 06 gen 2026
MUTUO
Annunci immobiliari da Privati a Roma
Comune di Roma
- Appartamenti in vendita senza provvigioni Roma
- Vendita case senza agenzia Roma
- Trilocali in vendita da privato Roma
- Case in vendita no agenzia zona Baldo degli Ubaldi, Roma
Provincia di Roma
Annunci simili
€ 475.000
- 5+ locali
- 101 mq
