Privato Vende
€ 215.000
- 3 locali
- 101 mq
- 1 bagno
Appartamento in Vendita da Privato a Pescara
Trilocale e garage in Via Rigopiano
Appartamento in zona silenziosa a 2 passi dalla stazione e dal centro città, con garage e posto macchina in cortile recintato.
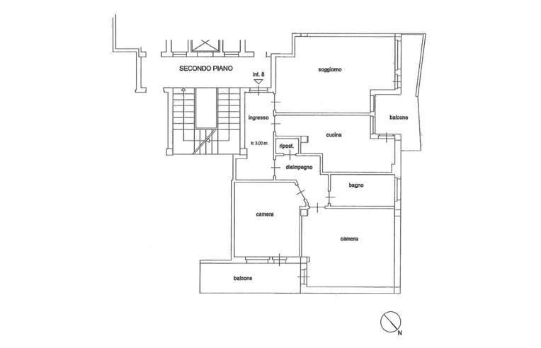
Superficie appartamento: totale 101 m2, totale escluse aree scoperte 96 m2
Superficie garage: 29m2 (soffitto di 5 mt).
Esposizione: Nord-Ovest, con 2 ampi balconi.
Piano: secondo con ascensore.
Posto auto in cortile interno con cancello automatico per 6 mesi/anno.
Riscaldamento centralizzato (possibilità di trasformare in autonomo).
Caldaia a gas per acqua calda.
Composizione: ingresso, salone, cucina abitabile, 2 camere da letto, bagno con finestra, ripostiglio.
Condizionatore caldo / freddo nella zona notte.
Videocitofono.
Pavimento in marmo.
Spese condominiali (riscaldamento + consumo acqua + pulizia scale e cortile esterno + amministrazione): 160€/mese.
Appartamento e garage attualmente locati con possibilità di subentro nel contratto o di rilascio in breve tempo.
Arredato di mobili essenziali (cucina, sala, camere, bagno) con possibilità di sgombero, se non interessati.
Scrivere per richiedere ulteriori foto e per concordare appuntamento.
No agenzie!
LEGGI TUTTO...
Superficie appartamento: totale 101 m2, totale escluse aree scoperte 96 m2
Superficie garage: 29m2 (soffitto di 5 mt).
Esposizione: Nord-Ovest, con 2 ampi balconi.
Piano: secondo con ascensore.
Posto auto in cortile interno con cancello automatico per 6 mesi/anno.
Riscaldamento centralizzato (possibilità di trasformare in autonomo).
Caldaia a gas per acqua calda.
Composizione: ingresso, salone, cucina abitabile, 2 camere da letto, bagno con finestra, ripostiglio.
Condizionatore caldo / freddo nella zona notte.
Videocitofono.
Pavimento in marmo.
Spese condominiali (riscaldamento + consumo acqua + pulizia scale e cortile esterno + amministrazione): 160€/mese.
Appartamento e garage attualmente locati con possibilità di subentro nel contratto o di rilascio in breve tempo.
Arredato di mobili essenziali (cucina, sala, camere, bagno) con possibilità di sgombero, se non interessati.
Scrivere per richiedere ulteriori foto e per concordare appuntamento.
No agenzie!
DATI PRINCIPALI
- Riferimento
- 404725
- Contratto
- Vendita
- Tipologia
- Appartamento
- Superficie
- 101 mq
- Locali
- 3
- Camere da letto
- 3
- Cucina
- Abitabile
- Bagni
- 1
- Piano
- 2 ° con ascensore
- Totale piani
- 4
- Box/Posto auto
- Posto auto coperto
CARATTERISTICHE
Balcone
Terrazzo
Giardino comune
Ascensore
Semi-arredato
Cantina
COSTI
- Prezzo
- € 215.000,00
EFFICIENZA ENERGETICA
- Stato
- Abitabile
- Anno costruzione
- 1971
- Riscaldamento
- Centralizzato
- Climatizzazione
- Si
- Classe energetica
- F
- IPE
- 105,58 kWh/m³a
A+
A
B
C
D
E
105,58 kWh/m³a | Classe energetica F
F
G
CONTATTA L'INSERZIONISTA
- Aggiornato al 05 set 2025
MUTUO
Annunci immobiliari da Privati a Pescara
Comune di Pescara
- Vendita appartamenti senza agenzia Pescara
- Vendesi case senza provvigioni Pescara
- Trilocali in vendita da privato Pescara
Provincia di Pescara
Annunci simili
€ 160.000
- 4 locali
- 80 mq
