Privato Vende
€ 245.000
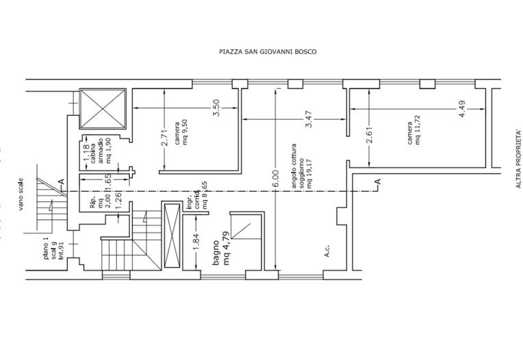
- 3 locali
- 79 mq
Appartamento in Vendita da Privato a Roma
Trilocale finemente ristrutturato
Due camere, bagno cucina vivibile e salottino, termoautonomo, con impianto di decalcificazione a monte, a 150 mt dalla metro A Giulio agricola, semiarredato. Ideale x residenza o investimento x l ottima posizione.
DATI PRINCIPALI
- Riferimento
- 337097
- Contratto
- Vendita
- Tipologia
- Appartamento
- Superficie
- 79 mq
- Locali
- 3
COSTI
- Prezzo
- € 245.000,00
EFFICIENZA ENERGETICA
- Classe energetica
- G
A+
A
B
C
D
E
F
Classe energetica G
G
MAPPA
CONTATTA L'INSERZIONISTA
- Aggiornato al 15 mar 2026
MUTUO
Annunci immobiliari da Privati a Roma
Comune di Roma
- Vendita appartamenti da privati Roma
- Vendesi case no agenzia Roma
- Vendesi trilocali senza provvigioni Roma
- Vendesi case da privato zona Romanina, Roma
