Privato Vende
€ 395.000
- 3 locali
- 87 mq
- 1 bagno
Appartamento in Vendita da Privato a Bordighera
Trilocale ristrutturato in zona centrale
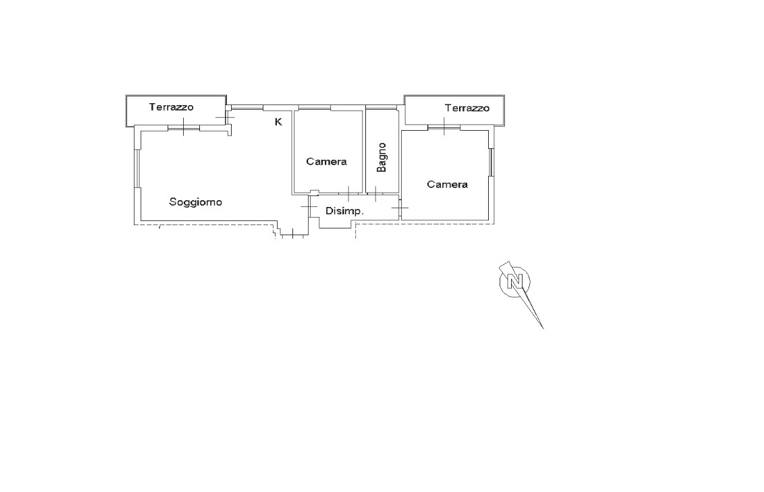
In posizione comoda, a pochi minuti dalla passeggiata mare e da tutti i servizi, PRIVATO vende un appartamento soleggiato di 85 mq al secondo piano con ascensore, inserito in un contesto tranquillo e verde. Palazzina di soli 3 piani, con accesso riservato ai soli condomini tramite un cancello esclusivo per residenti e con piccolo spazio verde curato.
Grazie alla tripla esposizione a Sud-Ovest-Est e piano alto, l’immobile risulta molto luminoso durante la giornata. L’appartamento è composto da ingresso che porta direttamente nell'amplio soggiorno con zona pranzo e angolo cottura, corridoio, cameretta, bagno finestrato e una grande camera da letto con armadio ad angolo.
Dal soggiorno e dalla camera si ha accesso a due ampi terrazzi vivibili esposti completamente a Sud con vista aperta nel verde.
L’appartamento è stato competamento ristrutturato recentemente nei minimi dettagli e con particolare attenzione al comfort: porta blindata, impianti elettrici ed idraulici nuovi, finestre con doppio vetro e tapparelle elettriche con telecomando, isolamento acustico, massetto nuovo ecc.
Al piano terreno trovano spazio una comoda cantina asciutta e finestrata, garage con possibilità di parcheggiare la macchina di fronte, posti auto condominiali a rotazione. Senza barriere architettoniche.
Caldaia condominiale nuova cambiata di recente. Lastrico solare comune.
Visto l'ottima posizione, comodità e quiete si presta per vivere stabilmente oppure come seconda casa al mare.
ASTENERSI AGENZIE!
LEGGI TUTTO...
Grazie alla tripla esposizione a Sud-Ovest-Est e piano alto, l’immobile risulta molto luminoso durante la giornata. L’appartamento è composto da ingresso che porta direttamente nell'amplio soggiorno con zona pranzo e angolo cottura, corridoio, cameretta, bagno finestrato e una grande camera da letto con armadio ad angolo.
Dal soggiorno e dalla camera si ha accesso a due ampi terrazzi vivibili esposti completamente a Sud con vista aperta nel verde.
L’appartamento è stato competamento ristrutturato recentemente nei minimi dettagli e con particolare attenzione al comfort: porta blindata, impianti elettrici ed idraulici nuovi, finestre con doppio vetro e tapparelle elettriche con telecomando, isolamento acustico, massetto nuovo ecc.
Al piano terreno trovano spazio una comoda cantina asciutta e finestrata, garage con possibilità di parcheggiare la macchina di fronte, posti auto condominiali a rotazione. Senza barriere architettoniche.
Caldaia condominiale nuova cambiata di recente. Lastrico solare comune.
Visto l'ottima posizione, comodità e quiete si presta per vivere stabilmente oppure come seconda casa al mare.
ASTENERSI AGENZIE!
DATI PRINCIPALI
- Riferimento
- 322434
- Contratto
- Vendita
- Tipologia
- Appartamento
- Superficie
- 87 mq
- Locali
- 3
- Camere da letto
- 2
- Cucina
- Angolo cottura
- Bagni
- 1
- Piano
- 2 ° con ascensore
- Totale piani
- 3
- Box/Posto auto
- Singolo
CARATTERISTICHE
Balcone
Terrazzo
Giardino comune
Ascensore
Semi-arredato
Cantina
COSTI
- Prezzo
- € 395.000,00
EFFICIENZA ENERGETICA
- Stato
- Ristrutturato
- Riscaldamento
- Centralizzato
- Climatizzazione
- No
- Classe energetica
- E
- IPE
- 54,95 kWh/m²a
A+
A
B
C
D
54,95 kWh/m²a | Classe energetica E
E
F
G
MAPPA
CONTATTA L'INSERZIONISTA
- Aggiornato al 03 feb 2026
MUTUO
Annunci immobiliari da Privati a Bordighera
Comune di Bordighera
- Appartamenti in vendita no agenzia Bordighera
- Vendesi case da proprietario Bordighera
- Vendesi trilocali senza agenzia Bordighera
Provincia di Imperia
Annunci simili
Trattativa Riservata
- 4 locali
- 95 mq
€ 350.000
- 3 locali
- 70 mq
Trattativa Riservata
- 3 locali
- 99 mq
€ 180.000
- 4 locali
- 60 mq
Trattativa Riservata
- 5 locali
- 80 mq
