Privato Vende
€ 300.000
- Più di 5 locali
- 150 mq
Appartamento in Vendita da Privato a Torino
Vendesi alloggio ampia metratura
Appartamento posto al terzo piano in palazzo di nove costruito fine anni 60 posto nei pressi di Piazza Omero, Mirafiori nord. La zona è a carattere residenziale nella zona sud-ovest di Torino, tutti i servizi di prossimità sono raggiungibili a piedi, comodo l'accesso alla tangenziale e nella zona sono presenti diverse aree con verde pubblico.
Stabile con doppio ascensore, doppio montacarichi e servizio portineria con residenza portinaio.
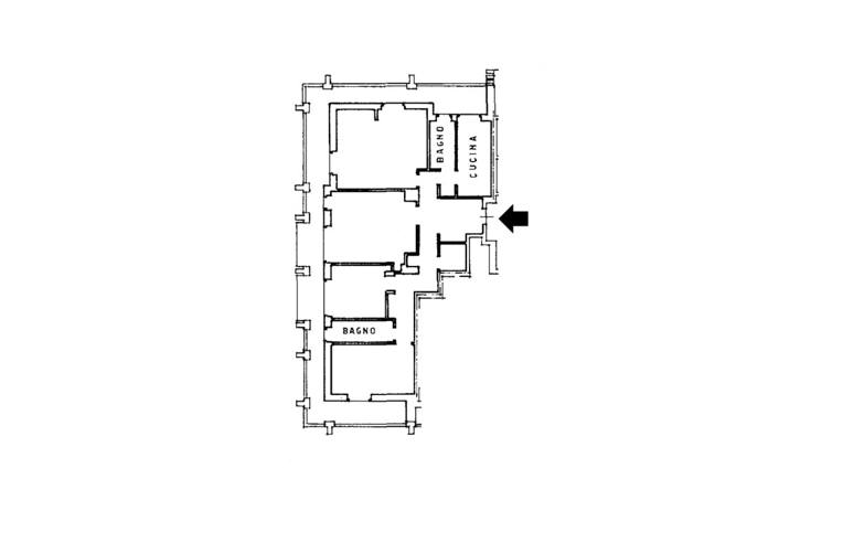
L'appartamento di 150 mq commerciali, si sviluppa con quattro vani, cucina, doppio servizio igienico il tutto posto a raggiera, il balcone è a ferro di cavallo e abbraccia tutte le stanze con esposizione prevalente a sud e sono molto luminose.
Le stanze hanno taglio regolare, con soffitti alti 3.00 mt I pavimenti sono in marmo, in legno in una camera e ceramica in bagno e cucina.
L'acqua calda è fornita da un bolier elettrico da 80 It. in bagno e un altro è presente in cucina.
Il riscaldamento è centralizzato con teleriscaldamento, sui caloriferi sono poste le contatermie e le valvole termostatiche.
Gli infissi esterni sono originali in legno tipo douglas con doppio vetro, le serrande avvolgibili sono coibentate e corazzate in alluminio, le pareti esterne perimetrali sono coibentate con isolante insuflato nelle intercapedini.
Le porte intere sono originali in legno bianco, il portoncino d'ingresso blindato.
L’alloggio è raggiunto da connessione internet mediante fibra ottica.
Completa la proprietà una cantina al piano -1 e numero box auto doppio pertinenziale, più secondo box doppio annesso e confinante.
LEGGI TUTTO...
Stabile con doppio ascensore, doppio montacarichi e servizio portineria con residenza portinaio.
L'appartamento di 150 mq commerciali, si sviluppa con quattro vani, cucina, doppio servizio igienico il tutto posto a raggiera, il balcone è a ferro di cavallo e abbraccia tutte le stanze con esposizione prevalente a sud e sono molto luminose.
Le stanze hanno taglio regolare, con soffitti alti 3.00 mt I pavimenti sono in marmo, in legno in una camera e ceramica in bagno e cucina.
L'acqua calda è fornita da un bolier elettrico da 80 It. in bagno e un altro è presente in cucina.
Il riscaldamento è centralizzato con teleriscaldamento, sui caloriferi sono poste le contatermie e le valvole termostatiche.
Gli infissi esterni sono originali in legno tipo douglas con doppio vetro, le serrande avvolgibili sono coibentate e corazzate in alluminio, le pareti esterne perimetrali sono coibentate con isolante insuflato nelle intercapedini.
Le porte intere sono originali in legno bianco, il portoncino d'ingresso blindato.
L’alloggio è raggiunto da connessione internet mediante fibra ottica.
Completa la proprietà una cantina al piano -1 e numero box auto doppio pertinenziale, più secondo box doppio annesso e confinante.
DATI PRINCIPALI
- Riferimento
- 408164
- Contratto
- Vendita
- Tipologia
- Appartamento
- Superficie
- 150 mq
- Locali
- Più di 5
COSTI
- Prezzo
- € 300.000,00
CONTATTA L'INSERZIONISTA
- Annuncio del 11 nov 2025
MUTUO
Annunci immobiliari da Privati a Torino
Comune di Torino
- Appartamenti in vendita da privato Torino
- Vendesi case da proprietario Torino
- Case in vendita no agenzia zona Centro Europa, Torino
Provincia di Torino
Annunci simili
€ 159.000
- 5+ locali
- 145 mq
€ 470.000
- 5+ locali
- 175 mq
