Privato Vende
Trattativa Riservata
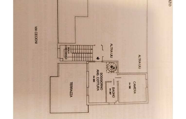
- 3 locali
- 65 mq
- 1 bagno
Attico in Vendita da Privato a Scandicci
Attico ristrutturato con grande terrazzo
Appartamento alle Bagnese ristrutturato totalmente e arredato chiavi in mano,ultimo piano con terrazzo grande, di circa 65mq totali, in piccolo condominio, con riscaldamento condominiale,aria condizionata (3 spilt nuovi)e cucina completa ad induzione (lavastoviglie,lavatrice e boiler eco. Arredamento e tutte le stoviglie incluse.
DATI PRINCIPALI
- Riferimento
- 411615
- Contratto
- Vendita
- Tipologia
- Attico
- Superficie
- 65 mq
- Locali
- 3
- Camere da letto
- 2
- Cucina
- Angolo cottura
- Bagni
- 1
- Piano
- 3 °
CARATTERISTICHE
Balcone
Terrazzo
Ascensore
Arredato
COSTI
- Prezzo
- Trattativa Riservata
EFFICIENZA ENERGETICA
- Stato
- Ristrutturato
- Anno costruzione
- 2024
- Riscaldamento
- Centralizzato
- Climatizzazione
- Si
- Classe energetica
- E
A+
A
B
C
D
Classe energetica E
E
F
G
CONTATTA L'INSERZIONISTA
- Aggiornato al 15 mar 2026
Annunci immobiliari da Privati a Scandicci
Comune di Scandicci
Provincia di Firenze
Annunci simili
€ 185.000
- 5+ locali
- 140 mq
