Privato Vende
€ 75.000
- 3 locali
- 65 mq
Casa indipendente in Vendita da Privato a Loculi
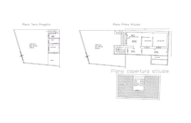
APPARTAMENTO AL PIANO PRIMO
COMPOSTO DA PRANZO CUCINA, BAGNO, DUE CAMERE DA LETTO AMPIA VERANDA CON RIPOSTIGLIO , SOPRASTNATE TERRAZAZ BELVEDERE DI MQ 90.00
CORTILE INDIPENDENTE 90 MQ CON OLIVO SECOLARE, VANO SOTTOSCALA ABITABILE DI MQ 20.00. IN FASE FINALE DI RISTRUTTURAZIONE. POSSIBILITA DI CONTRIBUTO A FONDO PERDUTO € 15.000,00 DAL COMUNE TRASFERENDO LA RESIDENZA DA UN PAESE DI PIU DI 3000 ABITANTI. DOCUMENTI REGOLARI PWER ACQUISTO CON MUTUO BANCARIO
CORTILE INDIPENDENTE 90 MQ CON OLIVO SECOLARE, VANO SOTTOSCALA ABITABILE DI MQ 20.00. IN FASE FINALE DI RISTRUTTURAZIONE. POSSIBILITA DI CONTRIBUTO A FONDO PERDUTO € 15.000,00 DAL COMUNE TRASFERENDO LA RESIDENZA DA UN PAESE DI PIU DI 3000 ABITANTI. DOCUMENTI REGOLARI PWER ACQUISTO CON MUTUO BANCARIO
DATI PRINCIPALI
- Riferimento
- 375696
- Contratto
- Vendita
- Tipologia
- Casa indipendente
- Superficie
- 65 mq
- Locali
- 3
COSTI
- Prezzo
- € 75.000,00
EFFICIENZA ENERGETICA
- Classe energetica
- Immobile non soggetto all'obbligo di certificazione energetica
MAPPA
CONTATTA L'INSERZIONISTA
- Aggiornato al 25 apr 2026
MUTUO
Annunci immobiliari da Privati a Loculi
Comune di Loculi
Provincia di Nuoro
Annunci simili
Trattativa Riservata
- 5+ locali
- 200 mq
