Privato Vende
Trattativa Riservata
- Più di 5 locali
- 270 mq
- 4 bagni
Casa indipendente in Vendita da Privato a Roseto degli Abruzzi
Bellissima casa in un bellissimo borgo
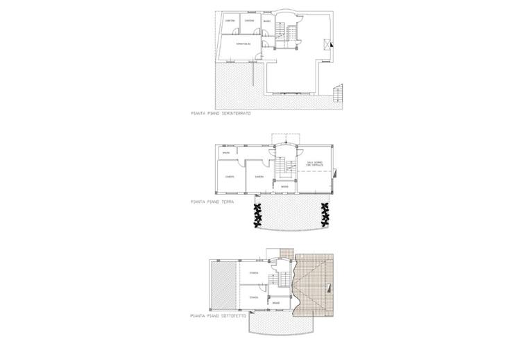
Nel centro storico di Montepagano ( borgo medioevale posto sulle colline di Roseto Degli Abruzzi ) è situata una villa singola di nuova costruzione composta da: seminterrato, ampia taverna,fondaco,cantina,ripostiglio, bagno e vano scala interno; al piano terra ampia zona giorno con soppalco, corridoio, due camere spaziose, due bagni e ampio terrazzo; al sottotetto due camere e bagno con balcone: finiture di pregio. Giardino esclusivo con posti auto e vasca idromassaggio 5 posti. Vista panoramica esclusiva a 360 gradi sul mare adriatico e sul massiccio del Gran Sasso
LEGGI TUTTO...
DATI PRINCIPALI
- Riferimento
- 118163
- Contratto
- Vendita
- Tipologia
- Casa indipendente
- Superficie
- 270 mq
- Locali
- Più di 5
- Camere da letto
- 4
- Cucina
- Abitabile
- Bagni
- 4
- Piano
- 3 °
- Totale piani
- 3
- Box/Posto auto
- Doppio
CARATTERISTICHE
Balcone
Terrazzo
Giardino privato
Ascensore
Arredato
Cantina
COSTI
- Prezzo
- Trattativa Riservata
EFFICIENZA ENERGETICA
- Stato
- Abitabile
- Anno costruzione
- 2008
- Riscaldamento
- Autonomo
- Climatizzazione
- Predisposizione
- Classe energetica
- A+
Classe energetica A+
A+
A
B
C
D
E
F
G
CONTATTA L'INSERZIONISTA
- Aggiornato al 31 gen 2026
Annunci immobiliari da Privati a Roseto degli Abruzzi
Comune di Roseto degli Abruzzi
- Vendesi case indipendenti no agenzia Roseto degli Abruzzi
- Case in vendita da privato Roseto degli Abruzzi
Provincia di Teramo
Annunci simili
€ 160.000
- 5+ locali
- 140 mq
Trattativa Riservata
- 5+ locali
- 400 mq
€ 300.000
- 5+ locali
- 100100 mq
