Privato Vende
Trattativa Riservata
- 5 locali
- 120 mq
- 2 bagni
Casa indipendente in Vendita da Privato a Matera
CASA INDIPENDENTE VIA FIORENTINI - CENTRO STORICO SASSI DI
Soluzione indipendente con volta a botte nel cuore del Sasso Barisano, interamente fuori terra, luminosissima, facilmente raggiungibile in auto e a soli 3 minuti a piedi dalla centralissima piazza Vittorio Veneto.
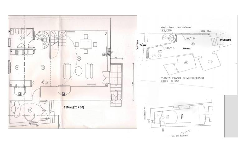
L’immobile di intera proprietà misura 120 mq ca. ed è distribuita su due livelli di 90 e 30 mq ca.; dispone inoltre, in sub-concessione gratuita fino al 2029, rinnovabile per altri 30 anni, di una camera di mq 21ca e di un caratteristico ipogeo di mq 100 ca. entrambi comunicanti con l’abitazione.
L’abitazione, a piano rialzato, è composta da un ingresso principale indipendente, da un’ampia zona living con volta a botte, con camino, balconcino e secondo ingresso, da una cucina con caratteristico forno a legna e terzo ingresso, da due luminose camere ed un bagno. L’ipogeo, accessibile mediante ingresso autonomo sulla via Fiorentini, è facilmente raggiungibile anche dall’interno dell’abitazione mediante una scala ed è costituito da ampi ambienti scavati nel tufo con un camino, un’area cucina, un bagno, una cantina e una cisterna.
Tutte le porte d’ingresso sono blindate, gli infissi esterni sono in legno con doppio vetro.
Nessuna spesa condominiale.
Per la posizione strategica ed il facile accesso la struttura si presta ottimamente per essere utilizzata sia in ottica residenziale che in ottica turistico-ricettiva
Prezzo su richiesta
LEGGI TUTTO...
L’immobile di intera proprietà misura 120 mq ca. ed è distribuita su due livelli di 90 e 30 mq ca.; dispone inoltre, in sub-concessione gratuita fino al 2029, rinnovabile per altri 30 anni, di una camera di mq 21ca e di un caratteristico ipogeo di mq 100 ca. entrambi comunicanti con l’abitazione.
L’abitazione, a piano rialzato, è composta da un ingresso principale indipendente, da un’ampia zona living con volta a botte, con camino, balconcino e secondo ingresso, da una cucina con caratteristico forno a legna e terzo ingresso, da due luminose camere ed un bagno. L’ipogeo, accessibile mediante ingresso autonomo sulla via Fiorentini, è facilmente raggiungibile anche dall’interno dell’abitazione mediante una scala ed è costituito da ampi ambienti scavati nel tufo con un camino, un’area cucina, un bagno, una cantina e una cisterna.
Tutte le porte d’ingresso sono blindate, gli infissi esterni sono in legno con doppio vetro.
Nessuna spesa condominiale.
Per la posizione strategica ed il facile accesso la struttura si presta ottimamente per essere utilizzata sia in ottica residenziale che in ottica turistico-ricettiva
Prezzo su richiesta
DATI PRINCIPALI
- Riferimento
- 370553
- Contratto
- Vendita
- Tipologia
- Casa indipendente
- Superficie
- 120 mq
- Locali
- 5
- Bagni
- 2
CARATTERISTICHE
Balcone
Terrazzo
Cantina
COSTI
- Prezzo
- Trattativa Riservata
EFFICIENZA ENERGETICA
- Stato
- Ristrutturato
- Riscaldamento
- Autonomo
CONTATTA L'INSERZIONISTA
- Aggiornato al 16 feb 2026
Annunci immobiliari da Privati a Matera
Comune di Matera
Provincia di Matera
Annunci simili
€ 140.000
- 5 locali
- 173 mq
€ 80.000
- 5 locali
- 60 mq
€ 75.000
- 5 locali
- 100 mq
