Privato Affitta
€ 600
- 5 locali
- 130 mq
- 2 bagni
Casa indipendente in Affitto da Privato a Barcellona Pozzo di Gotto
Casa indipente, centro città,
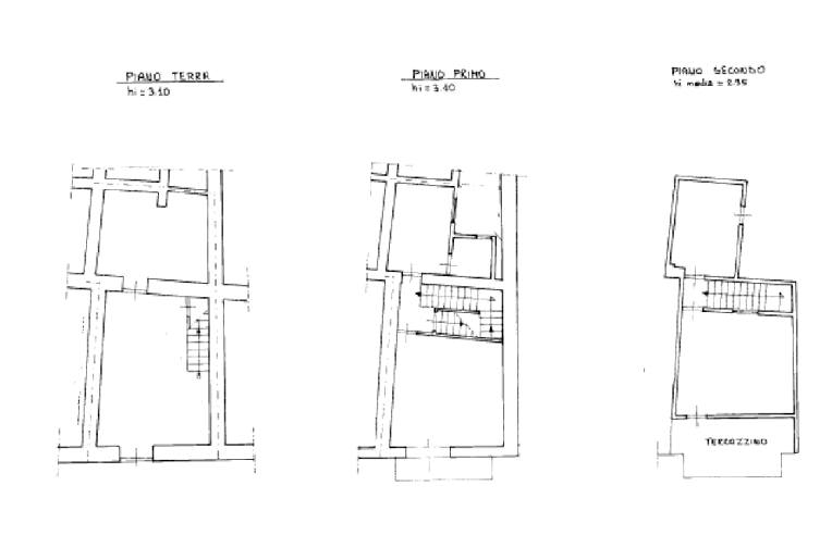
Si valuta anche vendita a rate o affitto con riscatto.. Parcheggio sempre disponibile in strada. Strada semi-privata non carrabile. Casa indipendente, centro città, servita da fermata bus, supermercati, servizi, indipendente su. 3 livelli, 4 camere da letto, 2 bagni (opzionale 3 bagno). Semi arredato, Riscalda acqua autonomo, no ascensore. Entrata-salotto-soggiorno, pranzo e cucina unico ambiente, circa 40 m2 a piano. Balcone lato mare primo piano, terrazzino lato mare secondo piano parzialmente a servizi (lavanderia). Zona Pozzo di Gotto, tra via Tempesta 25 e via Magenta 36 vicolo di collegamento, Barcellona Pozzo di Gotto. Si valuta anche vendita a rate o affitto con riscatto. Si valuta anche vendita a rate o affitto con riscatto.
LEGGI TUTTO...
DATI PRINCIPALI
- Riferimento
- 402481
- Contratto
- Affitto
- Tipologia
- Casa indipendente
- Superficie
- 130 mq
- Locali
- 5
- Camere da letto
- 4
- Cucina
- Abitabile
- Bagni
- 2
- Piano
- Su più livelli
- Totale piani
- 3
- Box/Posto auto
- No
CARATTERISTICHE
Balcone
Terrazzo
Giardino
Ascensore
Semi-arredato
Cantina
COSTI
- Canone
- Affitto € 600,00 al mese
- Tipo locazione
- 3+2 concordato
EFFICIENZA ENERGETICA
- Stato
- Abitabile
- Anno costruzione
- 1942
- Riscaldamento
- Autonomo
- Climatizzazione
- Predisposizione
- Classe energetica
- E
- IPE
- 102,27 kWh/m²a
A+
A
B
C
D
102,27 kWh/m²a | Classe energetica E
E
F
G
MAPPA
CONTATTA L'INSERZIONISTA
- Aggiornato al 31 mar 2026
Annunci immobiliari da Privati a Barcellona Pozzo di Gotto
Comune di Barcellona Pozzo di Gotto
- Affittasi case indipendenti da privato Barcellona Pozzo di Gotto
- Case in affitto senza intermediari Barcellona Pozzo di Gotto
Provincia di Messina
Annunci simili
Trattativa Riservata
- 5+ locali
- 200 mq
