Privato Vende
€ 50.000
- 4 locali
- 90 mq
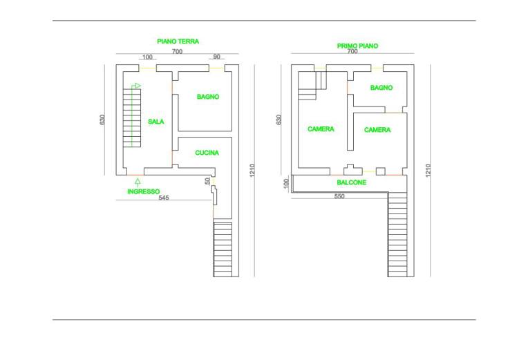
Casa indipendente in Vendita da Privato a Palestro
casa semindipendente libera su 2 lati
casa semi indipendente libera su 2 lati vendo.L'abitazione è composta da:piano terra e primo piano,più ampio giardino di 200 mq edificabile (per box o per un'ulteriore abitazione della stessa metratura,L casa viene venduta totalmente ristrutturata (i lavori sono in corso e avranno termine fra circa 1 al max 2 mesi).L'abitazione si trova a Palestro
DATI PRINCIPALI
- Riferimento
- 42039
- Contratto
- Vendita
- Tipologia
- Casa indipendente
- Superficie
- 90 mq
- Locali
- 4
COSTI
- Prezzo
- € 50.000,00
EFFICIENZA ENERGETICA
- Classe energetica
- B
- IPE
- 40,00 kWh/m²a
A+
A
40,00 kWh/m²a | Classe energetica B
B
C
D
E
F
G
CONTATTA L'INSERZIONISTA
- Aggiornato al 19 mar 2026
MUTUO
Annunci immobiliari da Privati a Palestro
Comune di Palestro
Provincia di Pavia
Annunci simili
€ 110.000
- 5 locali
- 115 mq
Trattativa Riservata
- 5 locali
- 315 mq
€ 140.000
- 5 locali
- 90 mq
