Privato Vende
€ 80.000
- Più di 5 locali
- 320 mq
Casa indipendente in Vendita da Privato a Mondovì
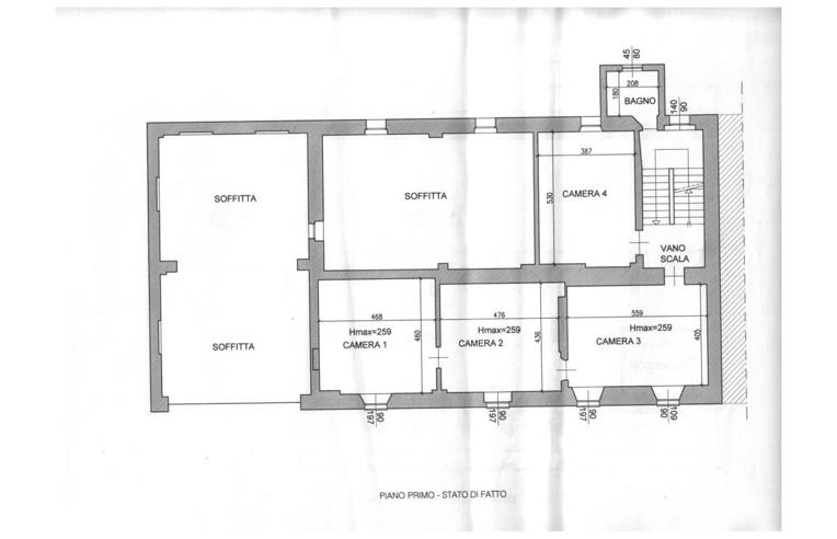
Casale del 1830 da ristrutturare con giardino vendesi
Casale ottimo per Bed & Breakfast con possibilità di 8 stanze e 8 bagni
DATI PRINCIPALI
- Riferimento
- 403491
- Contratto
- Vendita
- Tipologia
- Casa indipendente
- Superficie
- 320 mq
- Locali
- Più di 5
- Camere da letto
- Più di 5
- Cucina
- Abitabile
- Totale piani
- 3
- Box/Posto auto
- Doppio
CARATTERISTICHE
Giardino privato
Ascensore
Cantina
COSTI
- Prezzo
- € 80.000,00
EFFICIENZA ENERGETICA
- Anno costruzione
- 1838
- Classe energetica
- G
A+
A
B
C
D
E
F
Classe energetica G
G
MAPPA
CONTATTA L'INSERZIONISTA
- Aggiornato al 09 feb 2026
MUTUO
Annunci immobiliari da Privati a Mondovì
Comune di Mondovì
Provincia di Cuneo
Annunci simili
€ 75.000
- 5+ locali
- 224 mq
€ 70.000
- 5+ locali
- 600 mq
