Privato Vende
€ 460.000
- Più di 5 locali
- 300 mq
- 3 bagni
Casa indipendente in Vendita da Privato a Catania
Da privato appartamento autonomo a Catania zona leopardi
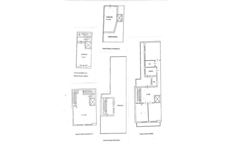
Da privato a privato vendesi a Catania, nelle vicinanze di via Giacomo Leopardi , grande appartamento su più livelli autonomo di mq.294,00 commerciali, costruzione antisismica anno 2014. L’edificio si sviluppa su 4 livelli con ascensore e scala. Al piano terra vi è un androne con ascensore e scala; al piano primo vi è un ampio vano open space di mq.50 finestrato, al piano secondo vi sono n.4 camere più cucina e due wc, e due ampi balconi. Al piano terzo vi è un’ampia terrazza solarium di circa mq.100. Al piano interrato, con ingresso carrabile servito da cancello automatico, vi è un garage doppio di mq.26,00 servito da ascensore privato. Ottime rifiniture e locali climatizzati. Idoneo per abitazione e studio, uffici, studi professionali, ecc. Per informazioni tel.377/0935933
LEGGI TUTTO...
DATI PRINCIPALI
- Riferimento
- 411548
- Contratto
- Vendita
- Tipologia
- Casa indipendente
- Superficie
- 300 mq
- Locali
- Più di 5
- Camere da letto
- 4
- Cucina
- Abitabile
- Bagni
- 3
- Piano
- Su più livelli con ascensore
- Totale piani
- 5
- Box/Posto auto
- Doppio
CARATTERISTICHE
Balcone
Terrazzo
Giardino
Ascensore
Arredato
Cantina
COSTI
- Prezzo
- € 460.000,00
EFFICIENZA ENERGETICA
- Stato
- Abitabile
- Anno costruzione
- 2014
- Riscaldamento
- Autonomo
- Climatizzazione
- Si
- Classe energetica
- D
- IPE
- 43,15 kWh/m²a
A+
A
B
C
43,15 kWh/m²a | Classe energetica D
D
E
F
G
MAPPA
CONTATTA L'INSERZIONISTA
- Aggiornato al 30 lug 2025
MUTUO
Annunci immobiliari da Privati a Catania
Comune di Catania
- Vendesi case indipendenti senza intermediari Catania
- Vendesi case no agenzia Catania
- Vendita case da privato zona Corso Italia, Catania
Provincia di Catania
Annunci simili
€ 150.000
- 5+ locali
- 216 mq
Trattativa Riservata
- 5+ locali
- 180 mq
Trattativa Riservata
- 5+ locali
- 189 mq
€ 300.000
- 5+ locali
- 280 mq
€ 280.000
- 5+ locali
- 153 mq
€ 130.000
- 5+ locali
- 200 mq
€ 40.000
- 5+ locali
- 112 mq
