Privato Vende
€ 110.000
- Più di 5 locali
- 200 mq
- 3 bagni
Casa indipendente in Vendita da Privato a Gravina in Puglia
RIF.VAG130 CASA TERRA CIELO
RIF.VAG130 GRAVINA IN PUGLIA
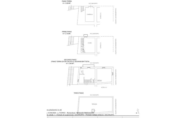
Italia Via Calata San Giovanni nel borgo medievale della città, proponiamo in vendita INTERO STABILE con doppia esposizione distribuita su tre livelli per un totale mq.200 commerciale più terrazzo panoramico. Lavori strutturali finiti.
Prezzo richiesto euro 110.000,000
Si accettano proposte
Info e Appuntamenti
Il Mattone Italia
Agenzia Immobiliare
Italia Via Calata San Giovanni nel borgo medievale della città, proponiamo in vendita INTERO STABILE con doppia esposizione distribuita su tre livelli per un totale mq.200 commerciale più terrazzo panoramico. Lavori strutturali finiti.
Prezzo richiesto euro 110.000,000
Si accettano proposte
Info e Appuntamenti
Il Mattone Italia
Agenzia Immobiliare
DATI PRINCIPALI
- Riferimento
- 374934
- Contratto
- Vendita
- Tipologia
- Casa indipendente
- Superficie
- 200 mq
- Locali
- Più di 5
- Camere da letto
- Più di 5
- Cucina
- Abitabile
- Bagni
- 3
- Piano
- Piano terra
- Totale piani
- 3
- Box/Posto auto
- Singolo
CARATTERISTICHE
Balcone
Terrazzo
Giardino privato
Ascensore
Arredato
Cantina
COSTI
- Prezzo
- € 110.000,00
EFFICIENZA ENERGETICA
- Stato
- Da ristrutturare
- Anno costruzione
- 1500
- Riscaldamento
- Autonomo
- Climatizzazione
- Predisposizione
MAPPA
CONTATTA L'INSERZIONISTA
- Aggiornato al 14 apr 2026
MUTUO
Annunci immobiliari da Privati a Gravina in Puglia
Comune di Gravina in Puglia
- Vendesi case indipendenti da privato Gravina in Puglia
- Case in vendita senza intermediari Gravina in Puglia
Provincia di Bari
Annunci simili
€ 95.000
- 5+ locali
- 110 mq
Trattativa Riservata
- 5+ locali
- 150 mq
