Affitto Vacanze
- 50 mq
- 5 posti letto
- 1 bagno
Appartamento Vacanze in affitto da Privato a Bonassola
BILOCALE con AMPIO GIARDINO e TERRAZZO a Bonassola centro
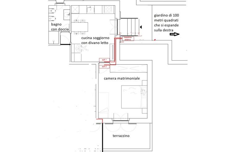
Appartamento NUOVO in pieno centro a Bonassola in zona tranquilla (dietro PENSIONE MODERNA). A soli 4 minuti a piedi dalla spiaggia principale e 3 minuti da stazione del treno. Dotato di piccolo terrazzo e ampio giardino al piano in diretta comunicazione con cucina dove potrai goderti pranzi e cene (presenza di ombrellone e tavolo da esterno). Un bagno. Una camere da letto indipendente (un letto matrimoniale e 1 singolo). Soggiorno con cucina e divano letto ad una piazza e mezza. Condizionatore caldo fretto in entrambe le stanze. TV. Per arrivare all'appartamento ci sono 58 gradini senza ascensore. NON Incluso permesso parcheggio NO posto auto
LEGGI TUTTO...
DATI PRINCIPALI
- Riferimento
- 368950
- Numero di registrazione (CIR/CIN)
- IT011005C256XYNDTA
- Contratto
- Affitto
- Tipologia
- Appartamento
- Tipo vacanza
- Mare
- Tema vacanza
- Non definito
- Superficie
- 50 mq
- Posti letto
- 5
- Camere da letto
- 1
- Cucina
- Abitabile
- Bagni
- 1
- Piano
- 2 °
- Accesso disabili
- No
- Si accettano animali
- Si
CARATTERISTICHE
Giardino privato
Ascensore
Parcheggio privato
Parcheggio comune
ACCESSORI
Stoviglie
Lavastoviglie
Lavatrice
Frigorifero
Congelatore
Microonde
Televisione
Barbecue
Ombrelloni/Sdraio
- Consumi
- € 50 non inclusi nel canone
Annotazioni
AGGIORNATO ORA IL 1.2.25 scrivere per maggiori info o dettagli al 3471365438 su whatsup - SI ACCETTANO PRENOTAZIONI PER IL 2025 (per ora tutto libero 2025) - POSSIBILITA' DI AFFITTO ANNUALE (12000 EURO escluse spese energia elettrica) o STAGIONALE (prezzo da concordare in base a periodo)
SOGGIORNO CON CUCINA NUOVA + TAVOLO DA PRANZO + DIVANO LETTO + TV (frigo, freezer, forno, microonde, fornelli, lavatrice e lavostoviglie e caldaia NUOVI) - divano letto ad una piazza e mezzo
CAMERA: camera con letto matrimoniale indipendente con armadio e condizionatore + 1 LETTO SINGOLO - porta finestra su terrazzo
BAGNO: fenestrato con doccia e caldaia acqua calda nuova
EFFICIENZA ENERGETICA
- Riscaldamento
- Autonomo
- Climatizzazione
- Si
MAPPA
CONTATTA L'INSERZIONISTA
- Aggiornato al 26 gen 2026
Annunci simili
- 65 mq
- 6 posti letto
- 68 mq
- 4 posti letto
- 105 mq
- 5 posti letto
- 65 mq
- 4 posti letto
- 55 mq
- 5 posti letto
- 55 mq
- 5 posti letto
- 35 mq
- 2 posti letto
- 38 mq
- 4 posti letto
- 80 mq
- 8 posti letto
- 42 mq
- 5 posti letto
- 80 mq
- 5 posti letto
- 65 mq
- 6 posti letto
