Privato Vende
€ 500.000
- Più di 5 locali
- 144 mq
Ufficio in Vendita da Privato a Cagliari
Appartamento in vendita Viale Diaz n.29
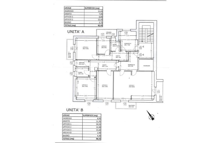
Scopri questo elegante ufficio di 149 mq situato al settimo piano di un palazzo del 1963, completamente ristrutturato nel 2010. Con i suoi 12 locali e un'altezza dei soffitti di 2,9 metri, questo spazio rappresenta la soluzione ideale per attività professionali che necessitano di ampi spazi e funzionalità.
Caratteristiche principali:
Superficie totale: 149 mq di spazio utilizzabile
12 locali versatili e ben distribuiti.
Ascensore per un comodo accesso al settimo piano
Posto auto incluso nella proprietà
Ristrutturazione recente (2010) che garantisce comfort e modernità
Posizione strategica: L'ufficio si trova in Viale Armando Diaz, una delle arterie principali di Cagliari, con eccellenti collegamenti e servizi nelle immediate vicinanze. A soli 2 minuti a piedi si trova il supermercato Gieffe, mentre la fermata dell'autobus di Viale Bonaria è raggiungibile in 5 minuti. La fermata del tram Lussu dista appena 6 minuti a piedi, garantendo ottimi collegamenti con il resto della città.
Questo immobile rappresenta un'opportunità unica per professionisti, studi associati o aziende che cercano uno spazio di rappresentanza in una zona centrale e ben servita di Cagliari. La disponibilità immediata lo rende perfetto per chi desidera avviare o trasferire la propria attività senza attese.
Contattare il numero
LEGGI TUTTO...
Caratteristiche principali:
Superficie totale: 149 mq di spazio utilizzabile
12 locali versatili e ben distribuiti.
Ascensore per un comodo accesso al settimo piano
Posto auto incluso nella proprietà
Ristrutturazione recente (2010) che garantisce comfort e modernità
Posizione strategica: L'ufficio si trova in Viale Armando Diaz, una delle arterie principali di Cagliari, con eccellenti collegamenti e servizi nelle immediate vicinanze. A soli 2 minuti a piedi si trova il supermercato Gieffe, mentre la fermata dell'autobus di Viale Bonaria è raggiungibile in 5 minuti. La fermata del tram Lussu dista appena 6 minuti a piedi, garantendo ottimi collegamenti con il resto della città.
Questo immobile rappresenta un'opportunità unica per professionisti, studi associati o aziende che cercano uno spazio di rappresentanza in una zona centrale e ben servita di Cagliari. La disponibilità immediata lo rende perfetto per chi desidera avviare o trasferire la propria attività senza attese.
Contattare il numero
DATI PRINCIPALI
- Riferimento
- 408158
- Contratto
- Vendita
- Tipologia
- Immobile - Ufficio
- Superficie
- 144 mq
- Locali
- Più di 5
COSTI
- Prezzo
- € 500.000,00
EFFICIENZA ENERGETICA
- Classe energetica
- D
A+
A
B
C
Classe energetica D
D
E
F
G
MAPPA
CONTATTA L'INSERZIONISTA
- Annuncio del 11 nov 2025
