Privato Vende
Trattativa Riservata
- Più di 5 locali
- 250 mq
Capannone in Vendita da Privato a Bologna
Capannone e uffici zona roveri Bologna
Vendesi
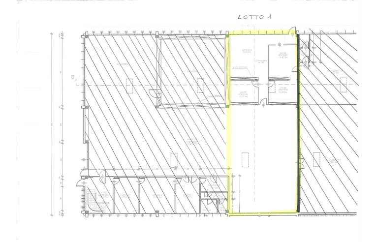
lotto 1 capannone: composto da 100 mq di uffici e 150 mq di capannone;
lotto 2:composto da 100 mq di uffici e 200 mq di capannone;
lotto 3: composto di 100 mq di uffici al piano terra + 85 mq al primo piano e di 350 mq di capannone;
lotto 4:composto da 100 mq di uffici al piano terra + 85 mq al primo piano e 650 mq di capannone;
lotto 5:composto da composto da 100 mq di uffici al piano terra + 85 mq al primo piano e 200 mq di capannone
Struttura anni 80
Per il lotto 4:possibilità di acquistare impianto fotovoltaico 40kw
LEGGI TUTTO...
lotto 1 capannone: composto da 100 mq di uffici e 150 mq di capannone;
lotto 2:composto da 100 mq di uffici e 200 mq di capannone;
lotto 3: composto di 100 mq di uffici al piano terra + 85 mq al primo piano e di 350 mq di capannone;
lotto 4:composto da 100 mq di uffici al piano terra + 85 mq al primo piano e 650 mq di capannone;
lotto 5:composto da composto da 100 mq di uffici al piano terra + 85 mq al primo piano e 200 mq di capannone
Struttura anni 80
Per il lotto 4:possibilità di acquistare impianto fotovoltaico 40kw
DATI PRINCIPALI
- Riferimento
- 94962
- Contratto
- Vendita
- Tipologia
- Immobile - Capannone
- Superficie
- 250 mq
- Locali
- Più di 5
COSTI
- Prezzo
- Trattativa Riservata
EFFICIENZA ENERGETICA
- Anno costruzione
- 1980
CONTATTA L'INSERZIONISTA
- Aggiornato al 14 apr 2026
