Privato Vende
€ 460.000
- Più di 5 locali
- 300 mq
- 3 bagni
Ufficio in Vendita da Privato a Catania
Da privato ampio ufficio autonomo a Catania zona leopardi
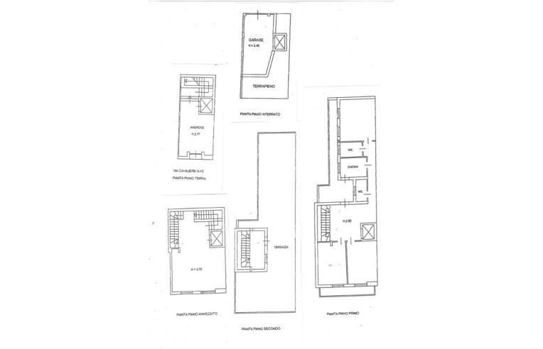
Da privato a privato vendesi a Catania, nelle vicinanze di via Giacomo Leopardi , grande ufficio su più livelli autonomo di mq.294,00 commerciali, costruzione antisismica anno 2014. L’edificio si sviluppa su 4 livelli con ascensore e scala. Al piano terra vi è un androne con ascensore e scala; al piano primo vi è un ampio vano open space di mq.50 finestrato, al piano secondo vi sono n.5 camere e due wc, e due ampi balconi. Al piano terzo vi è un’ampia terrazza solarium di circa mq.100. Al piano interrato, con ingresso carrabile servito da cancello automatico, vi è un garage doppio di mq.26,00 servito da ascensore privato. Ottime rifiniture e locali climatizzati. Idoneo per abitazione e studio, uffici, studi professionali, ecc. Per informazioni tel.377/0935933
LEGGI TUTTO...
DATI PRINCIPALI
- Riferimento
- 412259
- Contratto
- Vendita
- Tipologia
- Immobile - Ufficio
- Superficie
- 300 mq
- Superficie esterna
- 100 mq
- Superficie uffici
- 300 mq
- Locali
- Più di 5
- Cucina
- Cucinotto
- Bagni
- 3
- Piano
- Su più livelli con ascensore
- Totale piani
- 5
- Box/Posto auto
- Doppio
CARATTERISTICHE
Balcone
Terrazzo
Giardino
Ascensore
Arredato
Cablato
Predisposizione allarme
Cantina
COSTI
- Prezzo
- € 460.000,00
EFFICIENZA ENERGETICA
- Stato
- Abitabile
- Anno costruzione
- 2014
- Riscaldamento
- Autonomo
- Climatizzazione
- Si
- Classe energetica
- D
A+
A
B
C
Classe energetica D
D
E
F
G
MAPPA
CONTATTA L'INSERZIONISTA
- Aggiornato al 13 ago 2025
