Privato Vende
Trattativa Riservata
- Più di 5 locali
- 264 mq
Ufficio in Vendita da Privato a Padova
IMMOBILE DI PRESTIGIO USO UFFICIO/ABITATIVO
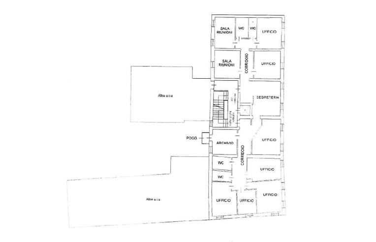
Nel cuore di Padova, proponiamo in vendita ampio e luminoso immobile di 264m2, situato al primo piano con ascensore in zona pedonale riservata.
Attualmente adibito ad ufficio, l’immobile si presta sia per uso professionale (studi associati, coworking, showroom) che ad eventuale conversione in residenza di pregio (con possibilità di creare due unità distinte di eguale metratura.
CARATTERISTICHE PRINCIPALI
• Superficie: 264 m2
• Spazi: ingresso/segreteria, lungo corridoio centrale, 10 stanze, 4 bagni, piccolo terrazzino
• Stato conservativo: ottimo, recentemente riqualificato con Superbonus 110%
• Accessibilità totale: primo piano con ascensore
• Posizione strategica: centro città, con servizi e trasporti a pochi passi
LEGGI TUTTO...
Attualmente adibito ad ufficio, l’immobile si presta sia per uso professionale (studi associati, coworking, showroom) che ad eventuale conversione in residenza di pregio (con possibilità di creare due unità distinte di eguale metratura.
CARATTERISTICHE PRINCIPALI
• Superficie: 264 m2
• Spazi: ingresso/segreteria, lungo corridoio centrale, 10 stanze, 4 bagni, piccolo terrazzino
• Stato conservativo: ottimo, recentemente riqualificato con Superbonus 110%
• Accessibilità totale: primo piano con ascensore
• Posizione strategica: centro città, con servizi e trasporti a pochi passi
DATI PRINCIPALI
- Riferimento
- 396350
- Contratto
- Vendita
- Tipologia
- Immobile - Ufficio
- Superficie
- 264 mq
- Locali
- Più di 5
COSTI
- Prezzo
- Trattativa Riservata
CONTATTA L'INSERZIONISTA
- Aggiornato al 02 ott 2025
