Privato Vende
Trattativa Riservata
- Più di 5 locali
- 700 mq
Negozio in Vendita da Privato a Mazara del Vallo
locale commerciale e/o ufficio vendo o affitto
Mazara Del Vallo , -TP- , via Castiglione , vendita e/o locazione , locale commerciale e/o ufficio .
Locale commerciale e/o ufficio di elevato prestigio , affitto o vendo
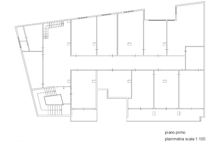
Ubicato a pochi metri da corso Umberto I° e dalla piazza Mokarta , luogo principale della citta ' , piano terra , primo piano e ammezzato al primo piano ; al piano terra ingresso autonomo di 52 mq. ,con disimpegno e possibilita' di inserire l'ascensore , al piano primo mq. 529 , ampio disimpegno , ampio corridoio di distribuzione , n.10 grandi ambienti autonomi stanze indipendenti, ben areati e luminosi e ampio ripostiglio oltre ampio locale di servizio e doppio w.c. ; In uno di questi ambienti , vi e' un soppalco di mq. 20 circa ; ammezzato al primo piano di 59 mq. , con ampio locale di servizio e doppio w.c. . Balconi per 37 mq. .
Complessivamente mq . 698 . Ideale per attivita' commerciale , clinica , centro estetica , scuola , universita' , call center ,centro commerciale , palestra , ufficio o altro . Ideale per societa' di rilievo nazionale che vogliano un riferimento nella provincia di Trapani . Possibilita' di cambio destinazione d uso , di modifiche secondo le proprie esigenze e anche di installare ascensore . Possibilita' di divisione circa al 50% .
Si valutano anche permute .
Prezzo per la vendita e locazione da concordare .
Prezzo per la locazione secondo valutazione agenzia entrate .
Classe: G - IPE>=175 kWh/mq. / anno . Solo contatto telefonico , con invio messaggio WhatsApp al primo contatto , .
LEGGI TUTTO...
Locale commerciale e/o ufficio di elevato prestigio , affitto o vendo
Ubicato a pochi metri da corso Umberto I° e dalla piazza Mokarta , luogo principale della citta ' , piano terra , primo piano e ammezzato al primo piano ; al piano terra ingresso autonomo di 52 mq. ,con disimpegno e possibilita' di inserire l'ascensore , al piano primo mq. 529 , ampio disimpegno , ampio corridoio di distribuzione , n.10 grandi ambienti autonomi stanze indipendenti, ben areati e luminosi e ampio ripostiglio oltre ampio locale di servizio e doppio w.c. ; In uno di questi ambienti , vi e' un soppalco di mq. 20 circa ; ammezzato al primo piano di 59 mq. , con ampio locale di servizio e doppio w.c. . Balconi per 37 mq. .
Complessivamente mq . 698 . Ideale per attivita' commerciale , clinica , centro estetica , scuola , universita' , call center ,centro commerciale , palestra , ufficio o altro . Ideale per societa' di rilievo nazionale che vogliano un riferimento nella provincia di Trapani . Possibilita' di cambio destinazione d uso , di modifiche secondo le proprie esigenze e anche di installare ascensore . Possibilita' di divisione circa al 50% .
Si valutano anche permute .
Prezzo per la vendita e locazione da concordare .
Prezzo per la locazione secondo valutazione agenzia entrate .
Classe: G - IPE>=175 kWh/mq. / anno . Solo contatto telefonico , con invio messaggio WhatsApp al primo contatto , .
DATI PRINCIPALI
- Riferimento
- 367624
- Contratto
- Vendita
- Tipologia
- Immobile - Negozio
- Superficie
- 700 mq
- Locali
- Più di 5
COSTI
- Prezzo
- Trattativa Riservata
EFFICIENZA ENERGETICA
- Classe energetica
- G
- IPE
- 175,00 kWh/m²a
A+
A
B
C
D
E
F
175,00 kWh/m²a | Classe energetica G
G
MAPPA
CONTATTA L'INSERZIONISTA
- Aggiornato al 06 gen 2026
