Privato Affitta
€ 750
- 2 locali
- 300 mq
- 1 bagno
Laboratorio in Affitto da Privato a Manfredonia
LOCALE USO COMMERCIALE MAGAZZINO, AUTOF IN 2 SOLUZIONI
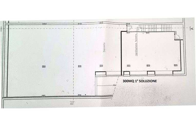
MANFREDONIA(FG) AFFITTO LOCALE USO COMMERCIALE ARTIGIANALE DEPOSITO MAGAZZINO/AUTORIMESSA AUTOFFICINA IN DUE SOLUZIONI:
LOCALE DI CIRCA 215 MQ COMPRESO SPAZIO DI MANOVRA DOTATO DI TRE FINESTRONI , INGRESSO AUTOMEZZI CASSONATI E CABINATI ALTEZZA MAX 2,80MT LARGHEZZA MAX 2,73 MT, 1 BAGNO EURO 650 NON TRATTABILI CON CONTRATTO
INTERO LOCALE DI CIRCA 300MQ COMPRESO SPAZIO DI MANOVRA DOTATO DI 7 FINESTRONI,INGRESSO AUTOMEZZI CASSONATI E CABINATI ALTEZZA MAX 2,80MT LARGHEZZA MAX 2,73 MT, 1 BAGNO EURO 750 NON TRATTABILI CON CONTRATTO.
ZONA VIDEO SORVEGLIATA., AMPIO PARCHEGGIO ESTERNO. ZONA ARTIGIANALE D32 VIALE DEL COMMERCIO MANFREDONIA(FG)
LEGGI TUTTO...
LOCALE DI CIRCA 215 MQ COMPRESO SPAZIO DI MANOVRA DOTATO DI TRE FINESTRONI , INGRESSO AUTOMEZZI CASSONATI E CABINATI ALTEZZA MAX 2,80MT LARGHEZZA MAX 2,73 MT, 1 BAGNO EURO 650 NON TRATTABILI CON CONTRATTO
INTERO LOCALE DI CIRCA 300MQ COMPRESO SPAZIO DI MANOVRA DOTATO DI 7 FINESTRONI,INGRESSO AUTOMEZZI CASSONATI E CABINATI ALTEZZA MAX 2,80MT LARGHEZZA MAX 2,73 MT, 1 BAGNO EURO 750 NON TRATTABILI CON CONTRATTO.
ZONA VIDEO SORVEGLIATA., AMPIO PARCHEGGIO ESTERNO. ZONA ARTIGIANALE D32 VIALE DEL COMMERCIO MANFREDONIA(FG)
DATI PRINCIPALI
- Riferimento
- 354908
- Contratto
- Affitto
- Tipologia
- Immobile - Laboratorio
- Superficie
- 300 mq
- Superficie uffici
- 300 mq
- Locali
- 2
- Cucina
- Abitabile
- Bagni
- 1
- Piano
- Seminterrato
- Totale piani
- 2
- Box/Posto auto
- Posto auto scoperto
CARATTERISTICHE
Balcone
Terrazzo
Giardino
Ascensore
Arredato
Cablato
Allarme
Cantina
COSTI
- Canone
- Affitto € 750,00 al mese
- Tipo locazione
- 4+4
- Spese condominiali
- € 1,00 / mese, incluse nel canone
EFFICIENZA ENERGETICA
- Stato
- Ristrutturato
- Anno costruzione
- 2000
- Riscaldamento
- Assente
- Climatizzazione
- No
- Classe energetica
- Immobile non soggetto all'obbligo di certificazione energetica
CONTATTA L'INSERZIONISTA
- Aggiornato al 19 dic 2025
