Privato Vende
Trattativa Riservata
- 3 locali
- 130 mq
Magazzino in Vendita da Privato a Agrigento
Magazzino per uso commerciale
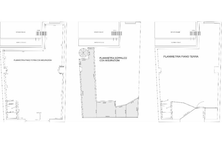
Locale commerciale ad Agrigento 130 mq circa , categoria catastale C/1 , Interamente ristrutturato a norma di legge ,
in possesso di tutte le autorizzazioni amministrative, con 2 vetrine fronte strada , parcheggio , ottima visibilità .
in possesso di tutte le autorizzazioni amministrative, con 2 vetrine fronte strada , parcheggio , ottima visibilità .
DATI PRINCIPALI
- Riferimento
- 401796
- Contratto
- Vendita
- Tipologia
- Immobile - Magazzino
- Superficie
- 130 mq
- Locali
- 3
COSTI
- Prezzo
- Trattativa Riservata
MAPPA
CONTATTA L'INSERZIONISTA
- Aggiornato al 08 gen 2026
Annunci simili
Trattativa Riservata
- 5 locali
- 1500 mq
