Privato Affitta
Trattativa Riservata
- 2 locali
- 24 mq
Ufficio in Affitto da Privato a Nuoro
Nuoro - 2 Locali uso Studio/Ufficio
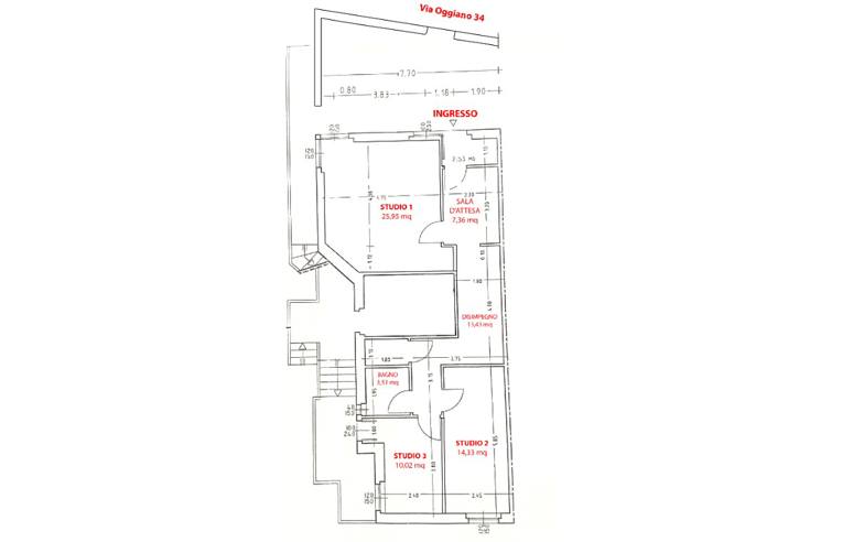
Nuoro - Via Oggiano 34, fronte Ex agenzia delle entrate, affittasi locali uso ufficio.
Studi 2 di 14 mq
Studi 3 di 10mq (vedi pianta )
I locali sono posti su un unico livello al piano terra, suddiviso in ingresso (2,5mq), sala di attesa (13,43mq) e bagno. Lo studio gode di ottima posizione, ideale per uso studio ufficio o ambulatorio Fronte strada. I locali possono essere affittati anche singolarmente.
Paolo
Studi 2 di 14 mq
Studi 3 di 10mq (vedi pianta )
I locali sono posti su un unico livello al piano terra, suddiviso in ingresso (2,5mq), sala di attesa (13,43mq) e bagno. Lo studio gode di ottima posizione, ideale per uso studio ufficio o ambulatorio Fronte strada. I locali possono essere affittati anche singolarmente.
Paolo
DATI PRINCIPALI
- Riferimento
- 359036
- Contratto
- Affitto
- Tipologia
- Immobile - Ufficio
- Superficie
- 24 mq
- Locali
- 2
COSTI
- Canone
- Trattativa Riservata
MAPPA
CONTATTA L'INSERZIONISTA
- Aggiornato al 14 feb 2026
