Privato Affitta
Trattativa Riservata
- 1 locale
- 110 mq
Magazzino in Affitto da Privato a Ginosa
Offro
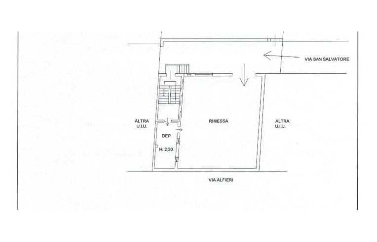
Offro in Affitto Magazzino Piano Terra , di mq. 110 con servizi igenici funzionanti.
A pochi minuti da Piazza Orologio e Piazza Nusco. Ingresso separato dal palazzo. Ottimo come Deposito Materiale, Laboratorio,Disponibile Subito
A pochi minuti da Piazza Orologio e Piazza Nusco. Ingresso separato dal palazzo. Ottimo come Deposito Materiale, Laboratorio,Disponibile Subito
DATI PRINCIPALI
- Riferimento
- 414252
- Contratto
- Affitto
- Tipologia
- Immobile - Magazzino
- Superficie
- 110 mq
- Locali
- 1
- Piano
- Seminterrato
- Totale piani
- 3
COSTI
- Canone
- Trattativa Riservata
- Tipo locazione
- 3+2 concordato
- Spese condominiali
- € 10,00 / mese, non incluse nel canone
EFFICIENZA ENERGETICA
- Stato
- Ristrutturato
- Anno costruzione
- 1990
CONTATTA L'INSERZIONISTA
- Annuncio del 27 mar 2026
